-
半盏流年
2023-12-05 09:14:09
|
四川
土建土建计量GTJ
|
560查看
2回答
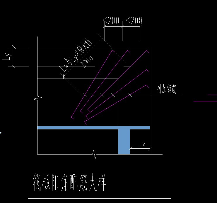
我这里筏板阳角附加筋长度怎么看?

全部回答
(2)
首答仅用{{minutesHtml}}
-
已采纳
外伸长度=根号下Lx*Lx+Ly*Ly
内长度取Lx、Ly较大值,且大于等于La
另加两个弯折
首次提交 2023-12-05 09:19:09 最近修改2023-12-05 09:19:57 (修改过1次)
-
表格算量中计算
2023-12-05 09:14:48






还有0条追问正在审核中,请稍后回来查看