-
拼
2023-12-01 16:39:50
|
河北
安装
|
387查看
5回答
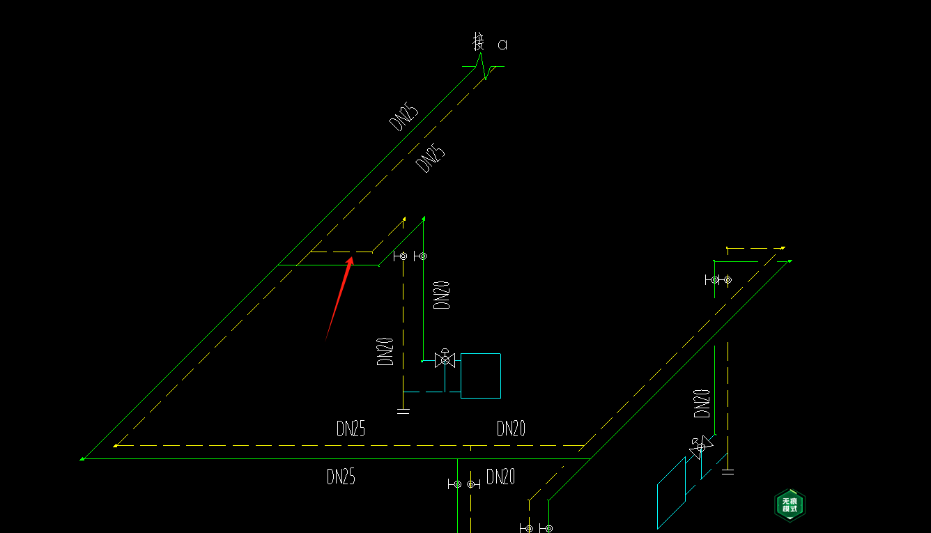
请问:箭头所指处是DN20还是DN25的管径?

全部回答
(5)
首答仅用{{minutesHtml}}
-
是DN20
2023-12-01 16:40:16
-
20
2023-12-01 16:40:37
-
DN20
2023-12-01 16:44:21
-
DN20,同立管
2023-12-01 16:48:11
-
DN20,遇三通变径
2023-12-05 15:40:56






还有0条追问正在审核中,请稍后回来查看