软件下载
线下培训
软件教程
智能客服
购买咨询
建筑课堂
答疑解惑
新干线头条
资料下载
技能大赛
答疑专家入驻
课程讲师入驻
行业媒体入驻
设计专区
造价专区
施工专区
联系我们
合作推广
隐私政策
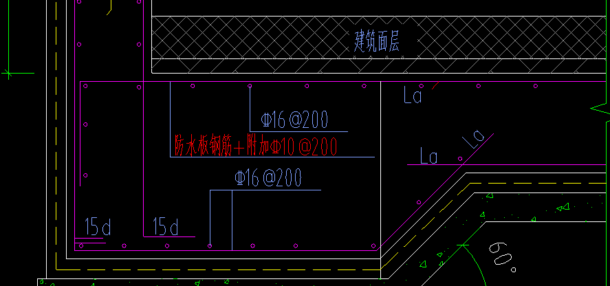
段一鸣 2023-11-02 17:53:39 | 山东 土建预算 | 516查看 3回答
这种钢筋如何输入
我的答案 答题人必看《优秀回答指南》
asfsdfsadfdsf
补充或更正我的问题
完善我的答案 答题人必看 《优秀回答指南》
全部回答 (3) 首答仅用{{minutesHtml}}
烁楠科技 铂金专家
答题: 77498 被赞: 98687
还是用筏板主筋布置即可
2023-11-02 17:56:22
zhangy 黄金专家
答题: 103471 被赞: 76116
筏板的钢筋布置好,再布置附加的C10@200钢筋。
2023-11-02 18:24:50
希望 专家
答题: 79093 被赞: 10885
分别用筏板主筋定义并输入即可.(定义筏板主筋,再定义C10@200重复布置)
2023-11-02 20:15:03
板附加钢筋
这块板是在双网双向的基础上在增加一道rh8@110的底筋嘛?
图上附加钢筋的布筋范围,设计回复是按梁格 区分,是什么意思,是蓝色箭头所指区域还是绿色箭头所指区域
筏板钢筋/防水板钢筋
请问圈中钢筋是什么意思,该怎么设置。上、下是什么意思
防水板钢筋
各位老师,我布置下面这跟横向底筋,为什么会多出来黄色中间的这一部分
请问这个防水板用筏板画了,钢筋怎么定义,
如果没找到您想要的答案,试试直接提问吧!
尊敬的“{{nickname}}”,您好!
答疑解惑——建筑行业领先的互动问答平台
答疑解惑——建筑业(造价行业)领先的互动问答平台
您的问题已发布您的回答已提交
大多数问题会在7分钟内获得回答,感谢您的耐心等待
恭喜获得答题积分奖励,帮助他人,成就自己。
采纳优质答案,更可获得积分,兑换礼品哦!
高质量答案更易被采纳,获得额外高额积分奖励!
专家榜
数据更新时间 : 2026-03-06
天降福运!积分,经验值等福利在等着你哟,快来签到吧
还有0条追问正在审核中,请稍后回来查看