软件下载
线下培训
软件教程
智能客服
购买咨询
建筑课堂
答疑解惑
新干线头条
资料下载
技能大赛
答疑专家入驻
课程讲师入驻
行业媒体入驻
设计专区
造价专区
施工专区
联系我们
合作推广
隐私政策
麻辣啵啵鱼 2023-09-07 17:36:03 | 河北 土建预算土建计量GTJ | 436查看 3回答
我的答案 答题人必看《优秀回答指南》
asfsdfsadfdsf
补充或更正我的问题
完善我的答案 答题人必看 《优秀回答指南》
全部回答 (3) 首答仅用{{minutesHtml}}
天涯浪子 黄金专家
答题: 55782 被赞: 17224
设置纵筋锚固
2023-09-07 17:36:41
xagcc 钻石专家
答题: 332169 被赞: 79300
表格算量中计算吧
2023-09-07 17:36:42
KMK 专家
答题: 1482 被赞: 1896
垂直方向的就是纵筋,水平方向的 是箍筋
2023-09-07 17:37:15
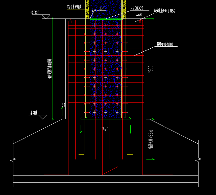
请教!构造柱的钢筋应该怎么算呢?纵筋和箍筋?
构造柱高5.2m,锚入梁或板内350mm,纵筋4c12,箍筋a6-200,上下两端600mm范围箍筋加密至100,请问这个构造柱的钢筋应该怎么计算呢?请帮帮忙,谢谢!
请问这个异性柱的箍筋怎么输入呢,系统显示错误
请问暗柱里的箍筋c8/10-100这种钢筋怎么输入
这是基础的剖面图,请问画图时中间的箍筋和边上的钢筋怎么输入呢
这种暗柱和预制墙体的纵向钢筋是一起的,预制墙的箍筋伸到暗柱里面,要怎么绘制呢?
如果没找到您想要的答案,试试直接提问吧!
尊敬的“{{nickname}}”,您好!
答疑解惑——建筑行业领先的互动问答平台
答疑解惑——建筑业(造价行业)领先的互动问答平台
您的问题已发布您的回答已提交
大多数问题会在7分钟内获得回答,感谢您的耐心等待
恭喜获得答题积分奖励,帮助他人,成就自己。
采纳优质答案,更可获得积分,兑换礼品哦!
高质量答案更易被采纳,获得额外高额积分奖励!
专家榜
数据更新时间 : 2026-03-06
天降福运!积分,经验值等福利在等着你哟,快来签到吧
还有0条追问正在审核中,请稍后回来查看