-
翻云覆雨手
2023-08-24 11:49:31
|
山东
土建
|
313查看
3回答
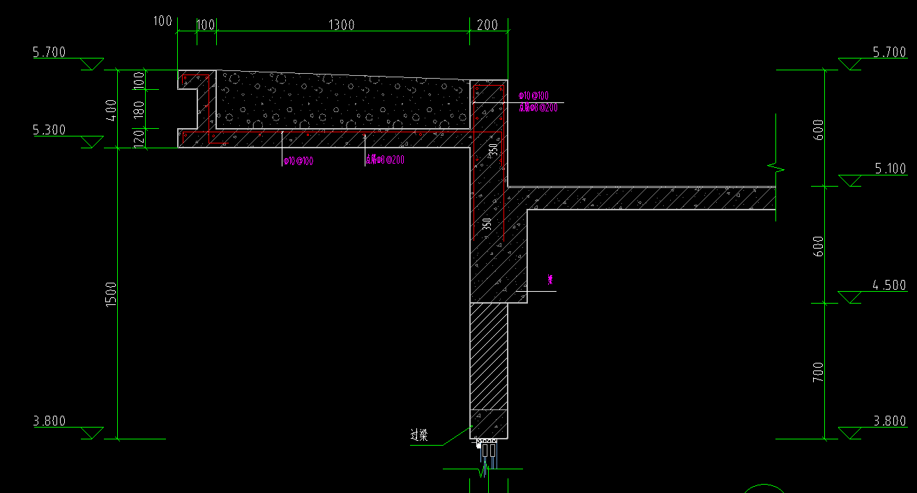
请问各位老师,下图换热站的屋檐怎么画


全部回答
(3)
首答仅用{{minutesHtml}}
-
现浇板+异形挑檐; 或者整体用异形挑檐画;或者用自定义节点
2023-08-24 11:51:37
-
自定义挑檐
2023-08-24 11:52:49
-
板+挑檐绘制
2023-08-24 13:17:56






还有0条追问正在审核中,请稍后回来查看