-
好运莲莲
2023-08-10 09:09:16
|
江苏
土建土建计量GTJ
|
439查看
5回答
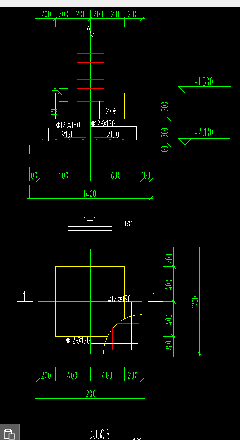
请问图中独立基础怎么绘制?谢谢谢

全部回答
(5)
首答仅用{{minutesHtml}}
-
已采纳
可新建两个基础单元,顶部单元不输入钢筋。2 A8为墙柱在基础插筋锚固区域数量不是基础信息2023-08-10 10:05:24
-
阶梯式独立基础
2023-08-10 09:09:59
-
参数独立基础
2023-08-10 09:10:13
-
可以选择相应的阶梯独立基础,也可以定义不同单元形成阶梯式独立基础
2023-08-10 09:10:48
-
新建独立基础---新建两个矩形独基单元,在底部单元属性里输钢筋
2023-08-10 09:15:31






还有0条追问正在审核中,请稍后回来查看