-
摸爬滚打
2023-06-16 17:01:09
|
山东
土建
|
796查看
1回答
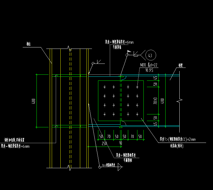
请问钢梁连接到牛腿边缘,牛腿宽250,我钢梁画到钢柱边缘250的距离对吗?


全部回答
(1)
首答仅用{{minutesHtml}}
-
已采纳
是的,答题不易,请采纳和点赞哦
2023-06-16 17:02:15






还有0条追问正在审核中,请稍后回来查看