-
森林的颜色
2023-06-16 07:20:56
|
山东
土建
|
2252查看
2回答
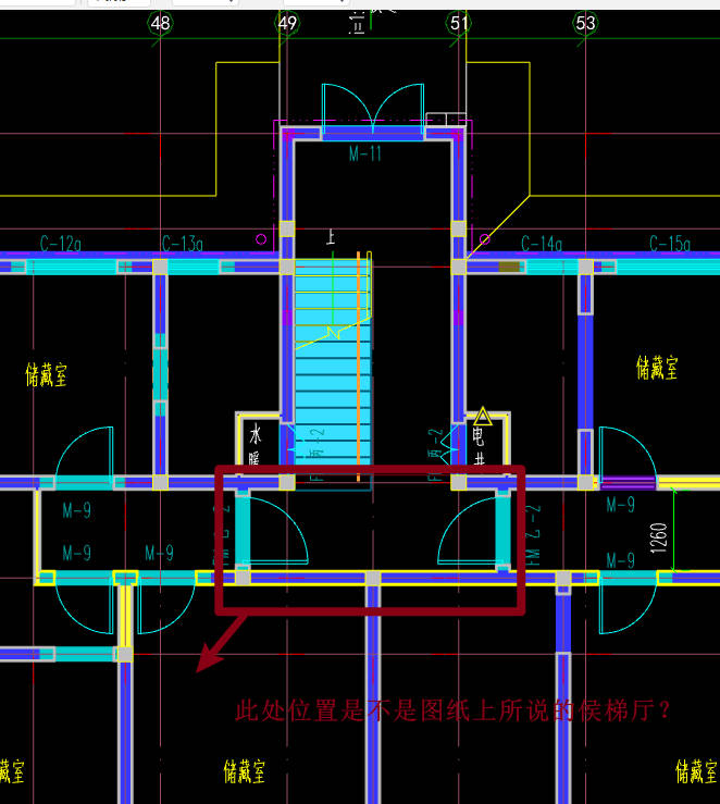
如图,砖混结构,此位置是否是图纸所说的侯梯厅??

全部回答
(2)
首答仅用{{minutesHtml}}
-
已采纳
侯梯厅是等电梯的,截图未看到电梯
2023-06-16 07:23:49
-
上图不是的
2023-06-16 07:41:34






还有0条追问正在审核中,请稍后回来查看