-
阮工
2023-06-15 15:41:52
|
广东
土建
|
5209查看
2回答
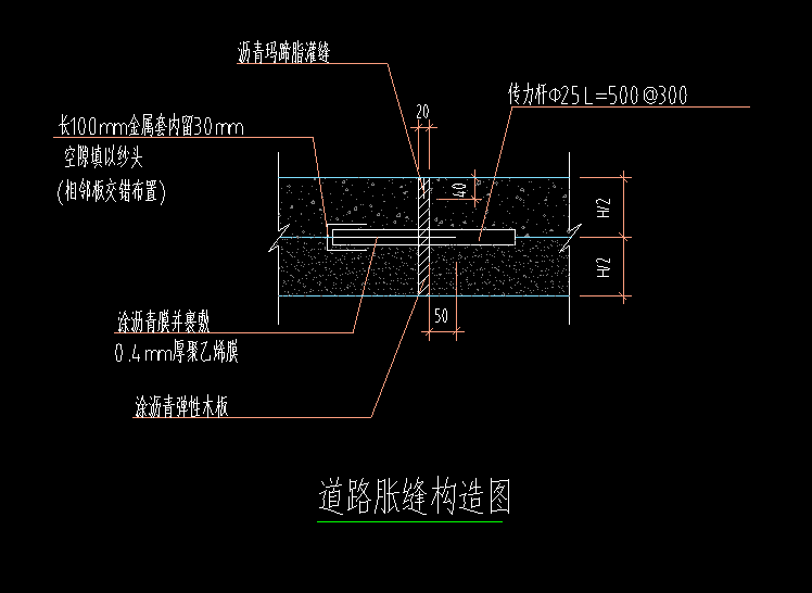
传力杆如何计算工程量

2023-06-15 15:44:18 补充
各位大神 不是很看得懂这个图
,求解2023-06-15 15:46:58 补充
路宽是4m,每150m设一个施工缝


全部回答
(2)
首答仅用{{minutesHtml}}
-
已采纳
路宽度除以间距0.3+1,得到一道施工缝的根数,然后再乘以施工缝的道数得到总根数
总根数乘以长度0.5,再乘以直径25的钢筋理论重量3.85,就是传力杆的钢筋工程量
2023-06-15 15:46:25
-
钢筋总条数*钢筋长度*钢筋每米重量
2023-06-15 15:45:04






还有0条追问正在审核中,请稍后回来查看