-
112233
2023-06-13 10:17:23
|
四川
土建结算土建计量GTJ
|
484查看
2回答
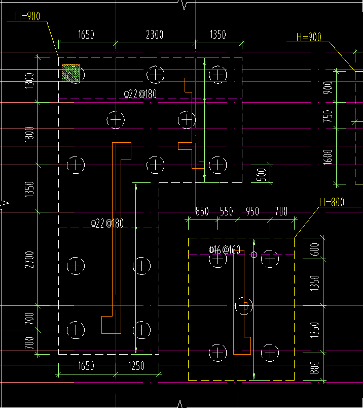
筏板放射筋,图示空白区域是250厚的抗水板,那筏板的阴阳角要布置放射筋吗?
2023-06-13 10:17:57 补充
2023-06-13 10:18:28 补充

全部回答
(2)
首答仅用{{minutesHtml}}
-
已采纳
筏板的 需要布置
2023-06-13 10:20:26
-
筏板的阳角要布置放射筋
首次提交 2023-06-13 10:21:42 最近修改2023-06-13 10:21:53 (修改过1次)






还有0条追问正在审核中,请稍后回来查看