-
混凝土
2023-06-11 18:18:18
|
广东
土建
|
2804查看
1回答
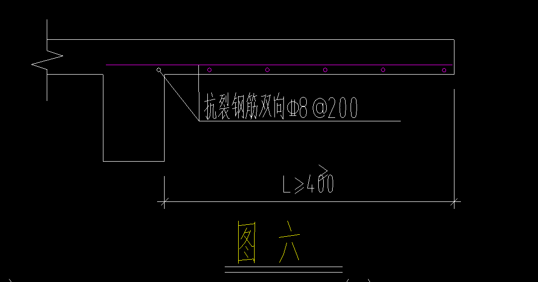
这一个板抗裂钢筋怎样设置?

全部回答
(1)
首答仅用{{minutesHtml}}
-
已采纳
悬挑板里布置上双向的底筋就好了
2023-06-11 18:24:20






还有0条追问正在审核中,请稍后回来查看