-
好运莲莲
2023-05-15 13:29:49
|
江苏
土建土建计量GTJ
|
312查看
2回答
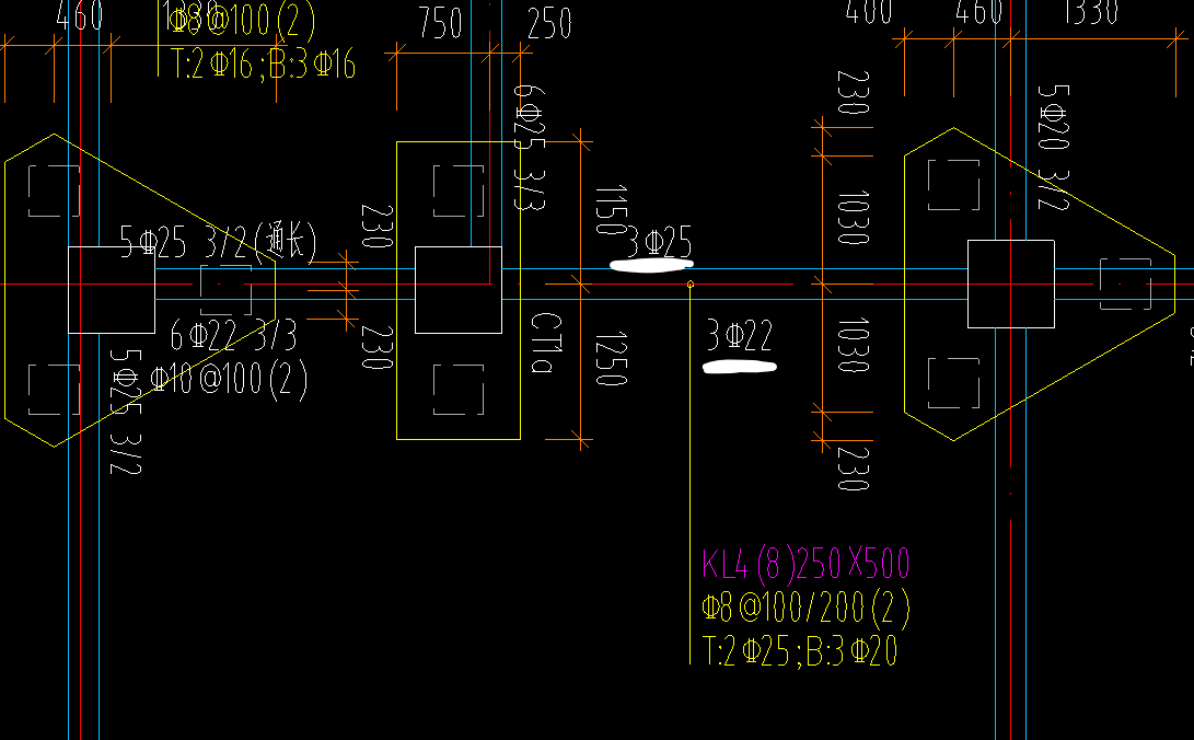
请问圈出的两个都是跨中钢筋吗?谢谢

全部回答
(2)
首答仅用{{minutesHtml}}
-
已采纳
KL的梁 下边的是底筋 上边才是跨中筋
首次提交 2023-05-15 13:33:14 最近修改2023-05-15 13:33:46 (修改过1次)
-
是的
2023-05-15 13:31:05






还有0条追问正在审核中,请稍后回来查看