-
好运莲莲
2023-05-05 10:32:30
|
江苏
土建土建计量GTJ
|
769查看
4回答
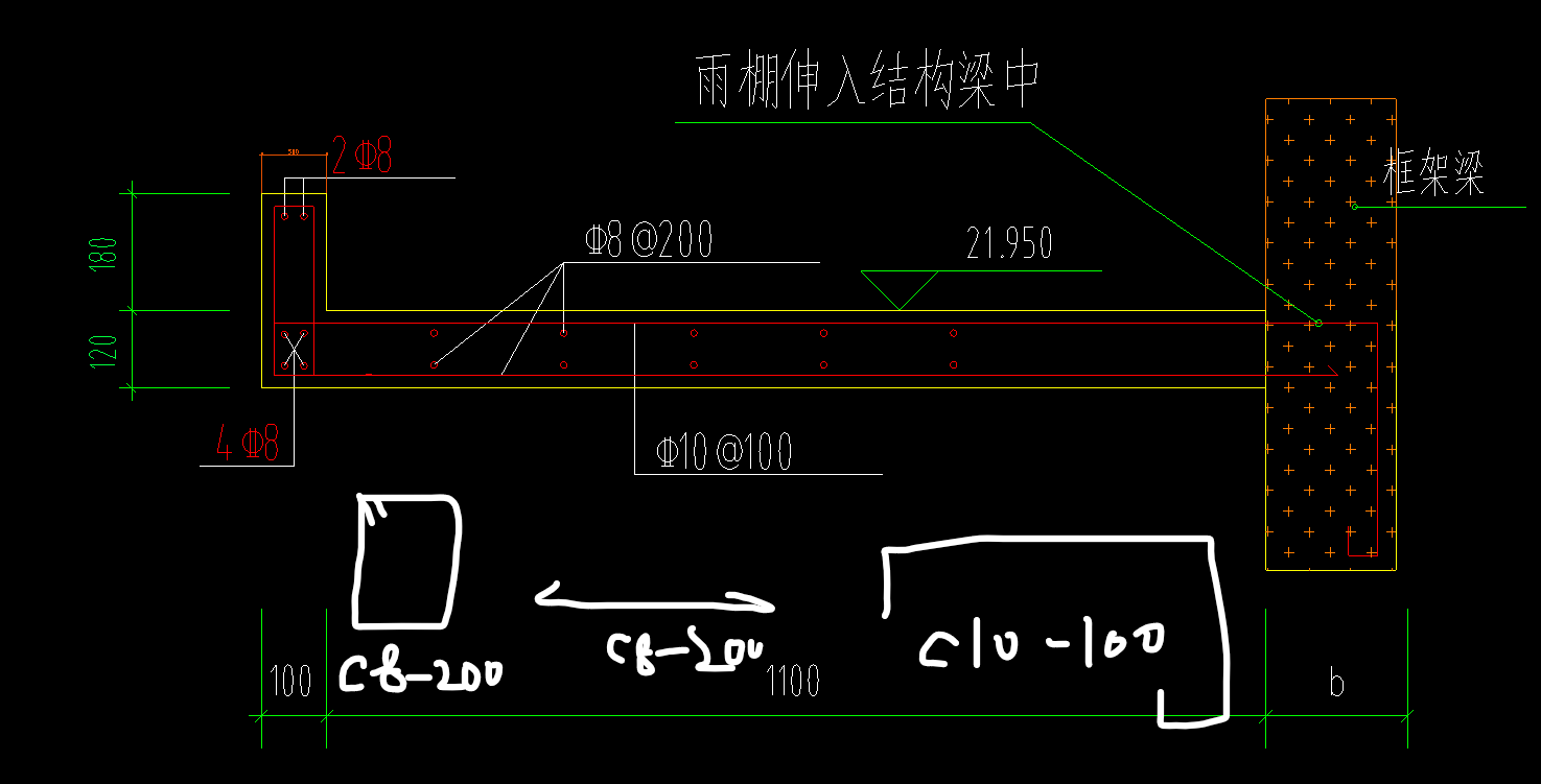
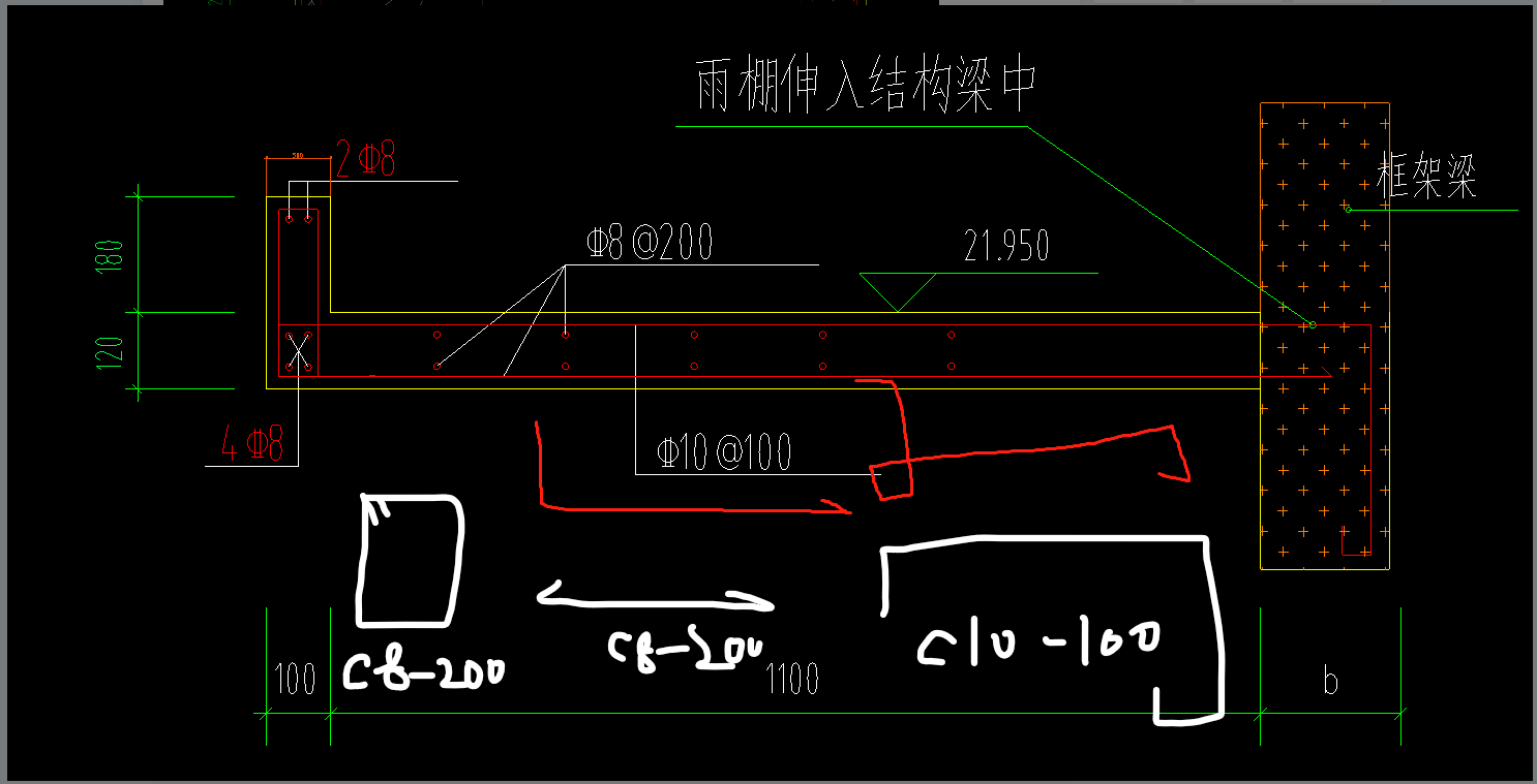
请问我钢筋走向理解正确吗?谢谢

全部回答
(4)
首答仅用{{minutesHtml}}
-
已采纳
不对

首次提交 2023-05-05 10:34:59 最近修改2023-05-05 10:36:13 (修改过1次)
-
是双层双向,你只画了一个方向
2023-05-05 10:34:20
-
基本正确,只是图中横向钢筋
C8-200的也可以附图式样

首次提交 2023-05-05 10:35:30 最近修改2023-05-05 10:42:15 (修改过1次)
-
不应该有箍筋

2023-05-05 10:37:55






还有0条追问正在审核中,请稍后回来查看