软件下载
线下培训
软件教程
智能客服
购买咨询
建筑课堂
答疑解惑
新干线头条
资料下载
技能大赛
答疑专家入驻
课程讲师入驻
行业媒体入驻
设计专区
造价专区
施工专区
联系我们
合作推广
隐私政策
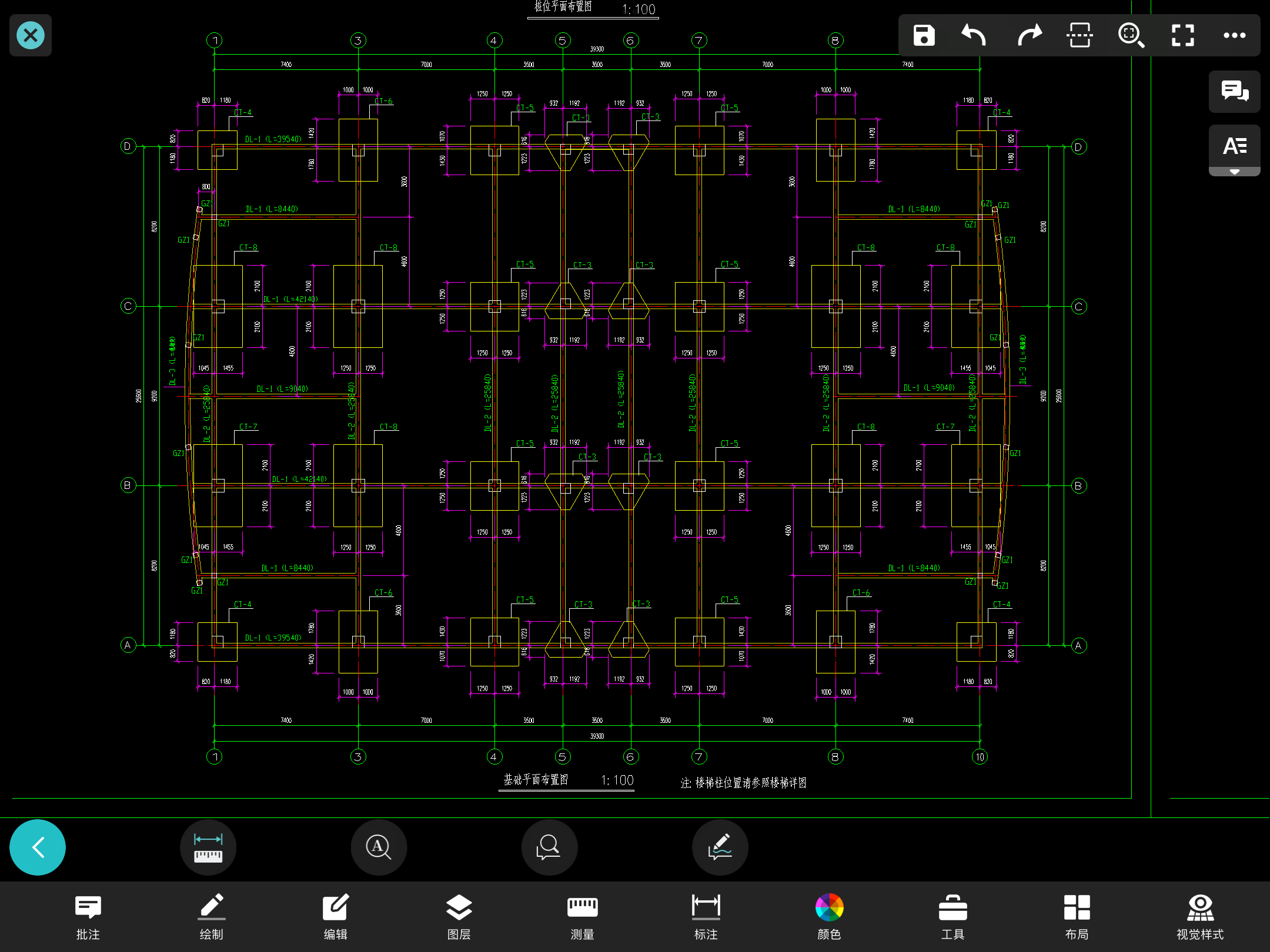
快乐hhh 2023-04-25 15:03:20 | 江西 土建 | 644查看 1回答
2023-04-25 15:04:36 补充
梁是套矩形梁还是基础梁呀
我的答案 答题人必看《优秀回答指南》
asfsdfsadfdsf
补充或更正我的问题
完善我的答案 答题人必看 《优秀回答指南》
全部回答 (1) 首答仅用{{minutesHtml}}
陈工 铂金专家
答题: 211112 被赞: 51050
套桩承台基础的。[[[梁是基础梁]]]
首次提交 2023-04-25 15:04:33 最近修改2023-04-25 15:06:10 (修改过1次)
有关建模问题
请问各位老师专家们,有个项目有一层地下室,地上三层,我也是第一次建模带地下室的项目。同事和我说需要把底板、承台、基础梁放在基础层,剪力墙柱子顶板放在负一层,同事说这样做可以考虑土方回填提量问题,那我能不能不管基础层,直接把地下室底板、剪力墙、基础梁、柱子、顶板都放在负一层开始建模,基础层就空在那里,这样行吗?2025-04-08 15:18:35 补充直接把地下室底板、桩、剪力墙、基础梁、柱子、顶板都放在负一层开始建模,基础层就空在那里
求助,关于地下室桩基础土方工程量计算问题。
如图,地下室桩基础,机械钻孔桩,底板-5m,承台、地梁标高砼底板,计算该工程的土方我的计算是这样,先以自然标高计算至大开挖至地下室底板,然后再分别计算承台、地梁开挖的土方,分别加上工作面与放坡等,最后再计算桩土方。然而现场实际施工顺序却是先大开挖到承台垫层底,后打桩,那么计算土方是按现场来,直接计算到承台垫层底与开挖桩土方吗?还是我所理解的计算方式?两者的工程量区别在于各承台与地梁之间的空隙工程量。另:现场有多层不带地下室,机械钻孔,现场施工时亦是大开挖到承台垫层底,那么同理该工程计算方式是按现场以自然地坪计算到承台垫层底还是先计算到承台顶再分别计算地梁与承台的土方量?求各位解答,万分感谢!!!!
如果没找到您想要的答案,试试直接提问吧!
尊敬的“{{nickname}}”,您好!
答疑解惑——建筑行业领先的互动问答平台
答疑解惑——建筑业(造价行业)领先的互动问答平台
您的问题已发布您的回答已提交
大多数问题会在7分钟内获得回答,感谢您的耐心等待
恭喜获得答题积分奖励,帮助他人,成就自己。
采纳优质答案,更可获得积分,兑换礼品哦!
高质量答案更易被采纳,获得额外高额积分奖励!
专家榜
数据更新时间 : 2026-03-06
天降福运!积分,经验值等福利在等着你哟,快来签到吧
还有0条追问正在审核中,请稍后回来查看