软件下载
线下培训
软件教程
智能客服
购买咨询
建筑课堂
答疑解惑
新干线头条
资料下载
技能大赛
答疑专家入驻
课程讲师入驻
行业媒体入驻
设计专区
造价专区
施工专区
联系我们
合作推广
隐私政策
刘 2023-03-23 14:31:50 | 河北 土建预算土建计量GTJ | 373查看 2回答
我的答案 答题人必看《优秀回答指南》
asfsdfsadfdsf
补充或更正我的问题
完善我的答案 答题人必看 《优秀回答指南》
全部回答 (2) 首答仅用{{minutesHtml}}
JieJieHuang 专家
答题: 320 被赞: 227
破折号指的是到那一层层底标高架在下面那层的顶梁上面
没问题的话请点击采纳哦
首次提交 2023-03-23 14:33:04 最近修改2023-03-23 15:51:09 (修改过2次)
天山雪豹 铂金专家
答题: 146886 被赞: 19952
平面图结合剖面图定义绘制
2023-03-23 14:33:37
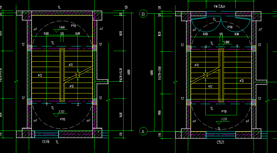
这个钢柱的图纸应该怎么看呢?求指导
紫铜管怎么计算 啊,这个型号应该怎么看啊
如图,表示的管道中心标高应该怎么看?根据什么计算?
这个图怎么看 应该如何设置暗梁箍筋的型号?
请问高程怎么看,如何从高程变化计算出挖方量,有相应软件吗
如果没找到您想要的答案,试试直接提问吧!
尊敬的“{{nickname}}”,您好!
答疑解惑——建筑行业领先的互动问答平台
答疑解惑——建筑业(造价行业)领先的互动问答平台
您的问题已发布您的回答已提交
大多数问题会在7分钟内获得回答,感谢您的耐心等待
恭喜获得答题积分奖励,帮助他人,成就自己。
采纳优质答案,更可获得积分,兑换礼品哦!
高质量答案更易被采纳,获得额外高额积分奖励!
专家榜
数据更新时间 : 2026-03-06
天降福运!积分,经验值等福利在等着你哟,快来签到吧
还有0条追问正在审核中,请稍后回来查看