软件下载
线下培训
软件教程
智能客服
购买咨询
建筑课堂
答疑解惑
新干线头条
资料下载
技能大赛
答疑专家入驻
课程讲师入驻
行业媒体入驻
设计专区
造价专区
施工专区
联系我们
合作推广
隐私政策
没想好昵称 2023-03-20 09:25:44 | 四川 土建 | 409查看 1回答
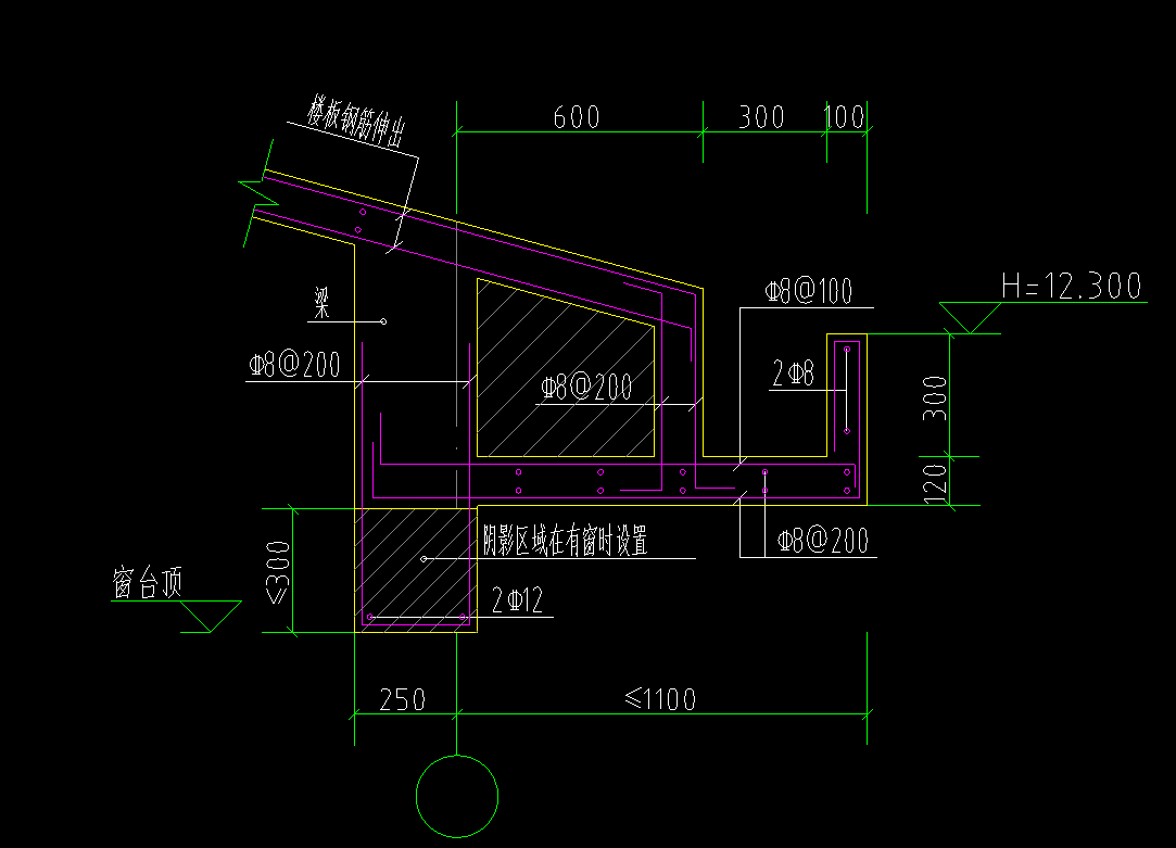
如图,坡屋面板往梁外延伸了一段,钢筋该怎么算呢
2023-03-20 09:33:50 补充
节点4
我的答案 答题人必看《优秀回答指南》
asfsdfsadfdsf
补充或更正我的问题
完善我的答案 答题人必看 《优秀回答指南》
全部回答 (1) 首答仅用{{minutesHtml}}
冯福连 白银专家
答题: 91469 被赞: 31187
要看节点 4 布置钢筋
水平用板,竖向用栏板构件画
首次提交 2023-03-20 09:29:48 最近修改2023-03-20 09:34:42 (修改过1次)
请问坡屋面板上的附加钢筋应该怎么设置啊?
请问这个屋面板的负筋应该怎么布置呢?
坡屋面板图,紫色的外边线是什么呢,该怎么去定义?
斜屋面板配筋为什么画出来是水平的,该怎么设置
我的斜屋面板已画好,配筋按正常配筋方式画,为什么板配筋三维显示是水平的,该如何设置才能让配筋与板契合
屋面板和楼板的分布筋不一样,怎么样布置呢?计算设置里只能布置一样的
如果没找到您想要的答案,试试直接提问吧!
尊敬的“{{nickname}}”,您好!
答疑解惑——建筑行业领先的互动问答平台
答疑解惑——建筑业(造价行业)领先的互动问答平台
您的问题已发布您的回答已提交
大多数问题会在7分钟内获得回答,感谢您的耐心等待
恭喜获得答题积分奖励,帮助他人,成就自己。
采纳优质答案,更可获得积分,兑换礼品哦!
高质量答案更易被采纳,获得额外高额积分奖励!
专家榜
数据更新时间 : 2026-03-06
天降福运!积分,经验值等福利在等着你哟,快来签到吧
还有0条追问正在审核中,请稍后回来查看