-
111
2023-03-07 15:02:36
|
山东
土建
|
363查看
3回答
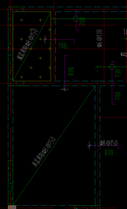
830的跨板受力筋和下面的双层双向钢筋怎么布置?

2023-03-07 15:03:44 补充
未注明板顶钢筋是c8-200
全部回答
(3)
首答仅用{{minutesHtml}}
-
已采纳
左边板的X向面筋伸出来830
2023-03-07 15:04:14
-
这是面筋延伸布置
2023-03-07 15:04:18
-

2023-03-07 15:06:07






还有0条追问正在审核中,请稍后回来查看