-
足迹
2023-02-24 10:05:34
|
河北
土建
|
546查看
3回答
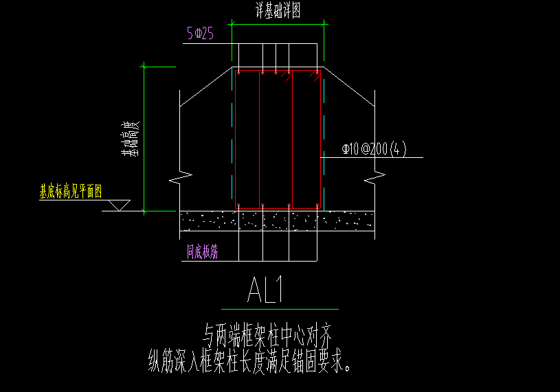
请问 独立基础中的这个梁是暗梁吗?用暗梁构建布置,还是用基础梁构建布置?


全部回答
(3)
首答仅用{{minutesHtml}}
-
已采纳
暗梁就可以了
在基础内的,而且设计也给出了暗梁
2023-02-24 10:07:04
-
暗梁
2023-02-24 10:08:06
-
基础梁
2023-02-24 10:11:30






还有0条追问正在审核中,请稍后回来查看