-
我呆子一个
2022-10-20 16:03:18
|
河北
土建
|
899查看
4回答
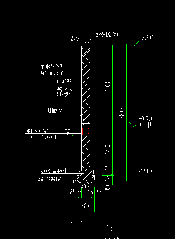
各位老师,这个围墙抹灰的量怎么算方便轻松

全部回答
(4)
首答仅用{{minutesHtml}}
-
直接布置墙面就行了。
2022-10-20 16:04:40
-
图形就是定义墙面抹灰点布置,汇总计算就是有相应的数据,手工计算就是长度*高度*2面
2022-10-20 16:04:46
-
S=长度*(2.3*2+0.24)
首次提交 2022-10-20 16:05:23 最近修改2022-10-20 16:05:36 (修改过1次)
-
手算吧,分顶面、正负0以上、正负0以下,软件提个长度就行
2022-10-20 16:14:40






还有0条追问正在审核中,请稍后回来查看