软件下载
线下培训
软件教程
智能客服
购买咨询
建筑课堂
答疑解惑
新干线头条
资料下载
技能大赛
答疑专家入驻
课程讲师入驻
行业媒体入驻
设计专区
造价专区
施工专区
联系我们
合作推广
隐私政策
求助大神 2022-08-25 10:30:31 | 四川 土建结算土建计量GTJ | 1068查看 1回答
我的答案 答题人必看《优秀回答指南》
asfsdfsadfdsf
补充或更正我的问题
完善我的答案 答题人必看 《优秀回答指南》
全部回答 (1) 首答仅用{{minutesHtml}}
nh 钻石专家
答题: 159456 被赞: 33944
建议手工计算弧长,绘制时按斜梁设置【长度弧长】,这样量应是一样的,参考
2022-08-26 09:25:23
广联达钢筋算量中梁钢筋向下起拱不处理如何处理
在屋面上如何设置有梁板,如何计算
None
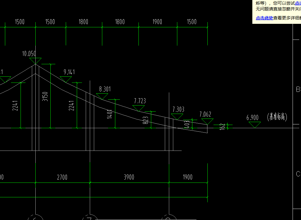
弧形坡屋面板如何建模?
哪位老师知道这种造型的弧形坡屋面板如何建模,板调标高不能弧形,设置拱板也不对
如果没找到您想要的答案,试试直接提问吧!
尊敬的“{{nickname}}”,您好!
答疑解惑——建筑行业领先的互动问答平台
答疑解惑——建筑业(造价行业)领先的互动问答平台
您的问题已发布您的回答已提交
大多数问题会在7分钟内获得回答,感谢您的耐心等待
恭喜获得答题积分奖励,帮助他人,成就自己。
采纳优质答案,更可获得积分,兑换礼品哦!
高质量答案更易被采纳,获得额外高额积分奖励!
专家榜
数据更新时间 : 2026-03-05
天降福运!积分,经验值等福利在等着你哟,快来签到吧
还有0条追问正在审核中,请稍后回来查看