-
大白
2022-06-01 11:49:17
|
广东
土建土建计量GTJ
|
2109查看
1回答
关于楼梯模板工程量的计算(广东18定额)问题
定额的计算规则【模板】:楼梯模板按水平投影面积计算,整体楼梯的水平投影面积包括休息平台、平台梁、斜梁和楼梯的连接梁。不扣除小于500mm宽度的梯井,楼梯的踏步板、平台梁等的侧面模板不另计算。
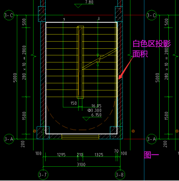
1、请问投影面积,到底是按建施图砌体墙围成的面积(如图一白色框内的面积)

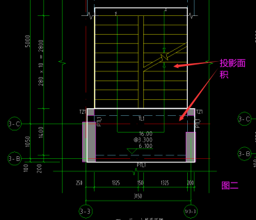
还是按楼梯的结构图水平投影(如图二白色框内的面积)

2、如果按建施图砌体墙围成的面积(如图一白色框内)计算,那嵌入砌体墙内的梯梁(PTL1)模板工程量就少算了,那PTL1模板工程量如何处理?

恳求广东地区的老师、专家、前辈给个指点,感谢
2022-06-01 12:30:38 补充

全部回答
(1)
首答仅用{{minutesHtml}}
-
楼梯按图一中的去计算工程量
嵌入砌体的梁不计算到楼梯里,是按梁的规则单独计算的,套梁的子目
2022-06-01 11:53:35
-
广东18定额,这里的分段计算改选哪个?软件出了2个工程量,该如何套取?总模板工程量套1个,超高套1个吗?这个问题一直困扰很多人,软件计算的工程量,如何匹配相应定额?求大神举例说明,要求18定额
-
关于有梁板的混凝土工程量和模板工程量的计算套价问题,广东定额
有梁板混凝土工程量计算广东定额明确说明“有梁板梁(包括主次梁与板)按梁板体积之和计算”,但是梁板的模板却没有说明,请问套价时候模板是分开套梁模板和板模板,还是合并在一起套“有梁板模板”子目呢?
-
楼梯间墙裙高度为1.5米,请问梯段的斜面积工程量该如何计算?如果按斜长乘高度的话是否正确呢?毕竟贴墙裙的时候不是直线贴的要贴合着梯级去贴






还有0条追问正在审核中,请稍后回来查看