-
wuheng
2022-04-25 09:59:24
|
河北
土建
|
720查看
1回答
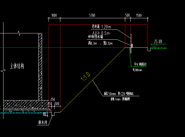
护坡钢筋问题。。



这个14的钢筋应该怎么计算?(上底长度+下底长度)/2=14的钢筋长度吗?那14的钢筋根数怎么计算,,
全部回答
(1)
首答仅用{{minutesHtml}}
-
14的钢筋是加强筋,加强筋说明写的间距小于等于2m,那就按2m计算。加强筋写的是通长设置。按基坑护坡长度计算。希望对您有帮助
2022-04-26 13:05:54






还有0条追问正在审核中,请稍后回来查看