-
Q.
2022-04-02 11:27:22
|
广西
土建装饰土建计量GTJ
|
467查看
3回答
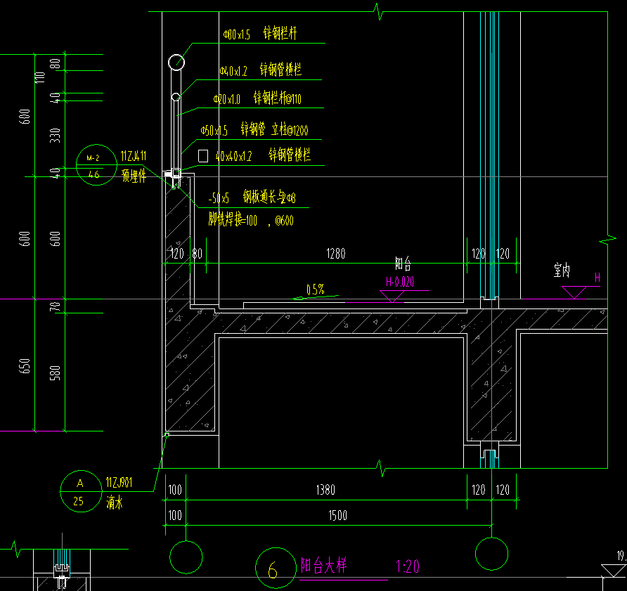
想问一下老师们,这个栏杆怎么布置


全部回答
(3)
首答仅用{{minutesHtml}}
-
已采纳
可以定于栏杆属性,然后画线布置
2022-04-02 11:29:58
-
手算
2022-04-02 11:28:34
-
也是可以用栏杆布置的。
2022-04-02 11:29:17






还有0条追问正在审核中,请稍后回来查看