软件下载
线下培训
软件教程
智能客服
购买咨询
建筑课堂
答疑解惑
新干线头条
资料下载
技能大赛
答疑专家入驻
课程讲师入驻
行业媒体入驻
设计专区
造价专区
施工专区
联系我们
合作推广
隐私政策
S 2022-02-12 11:12:51 | 江西 土建预算土建计量GTJ | 689查看 2回答
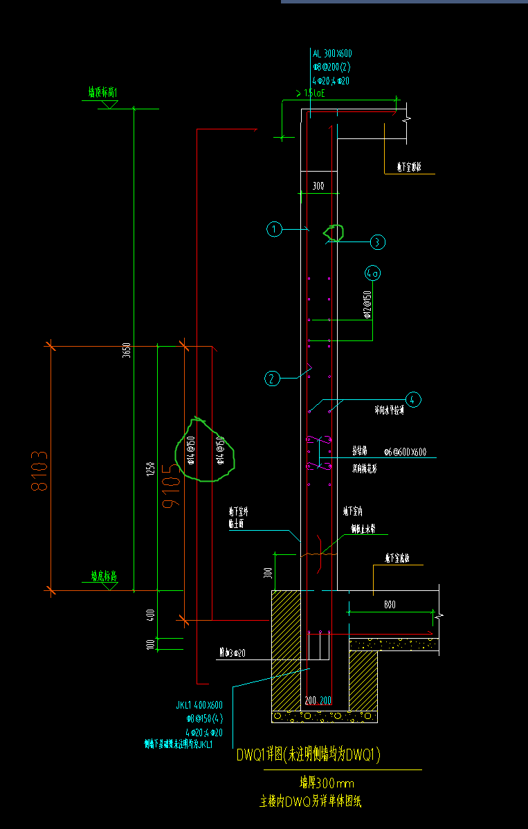
如图,两侧水平分布筋在编辑钢筋里面是有分水平筋1和2的,但是垂直筋没有,根据图纸这个剪力墙内外侧钢筋弯折是有不同的,想把外侧两个都放到其他钢筋里面设置又怕和这个重复了,求问要怎么处理这样的情况啊
我的答案 答题人必看《优秀回答指南》
asfsdfsadfdsf
补充或更正我的问题
完善我的答案 答题人必看 《优秀回答指南》
全部回答 (2) 首答仅用{{minutesHtml}}
还有 2 条答案正在审核中,请稍后回来查看
关于人防门框墙的问题
请问各位大佬,图中红色框内人防门框两侧的垂直钢筋是按照C16@100分布布置,还是按照结构临空墙C12@150来布置?红色框内是否都属于人防门框墙的范围?红色框内的拉结筋是否同剪力墙按梅花布置?谢谢,在线等。2020-12-01 13:27:10 补充@xagcc
如果没找到您想要的答案,试试直接提问吧!
尊敬的“{{nickname}}”,您好!
答疑解惑——建筑行业领先的互动问答平台
答疑解惑——建筑业(造价行业)领先的互动问答平台
您的问题已发布您的回答已提交
大多数问题会在7分钟内获得回答,感谢您的耐心等待
恭喜获得答题积分奖励,帮助他人,成就自己。
采纳优质答案,更可获得积分,兑换礼品哦!
高质量答案更易被采纳,获得额外高额积分奖励!
专家榜
数据更新时间 : 2026-03-06
天降福运!积分,经验值等福利在等着你哟,快来签到吧