-
.
2022-01-11 01:24:49
|
山东
安装
|
680查看
4回答
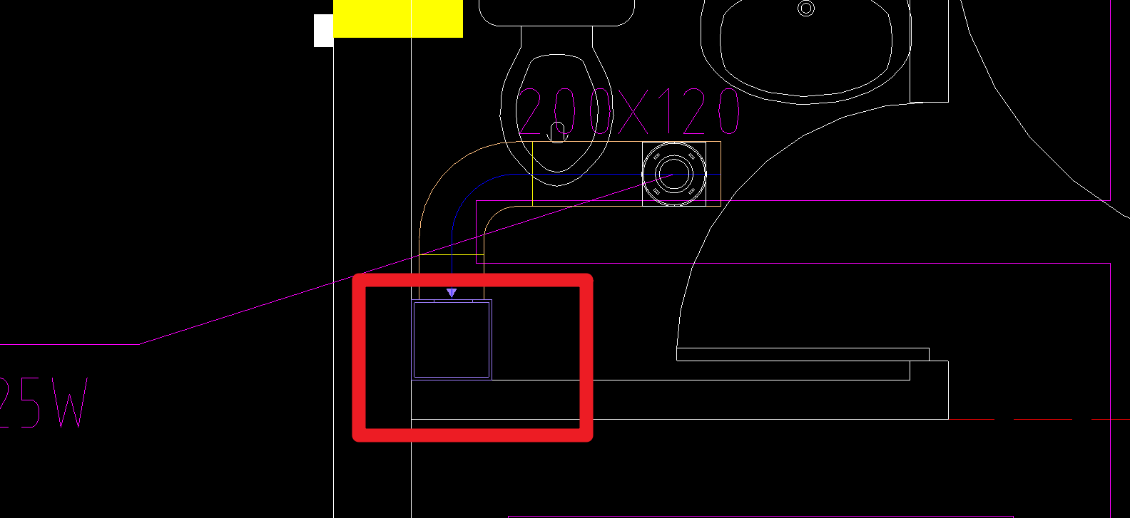
大佬们请帮忙看看这个70°防火阀是不是安装在红框处附近


全部回答
(4)
首答仅用{{minutesHtml}}
-
已采纳
是的,红框那是竖向风道,上面就是防火阀
首次提交 2022-01-11 04:20:03 最近修改2022-01-11 07:27:30 (修改过1次)
-
是的
2022-01-11 03:44:48
-
是在框 上小箭头处
2022-01-11 07:50:34
-
对
2022-01-11 07:59:37






还有0条追问正在审核中,请稍后回来查看