-
小杨在学习
2021-10-11 11:18:21
|
广东
安装
|
531查看
2回答
防雷套价

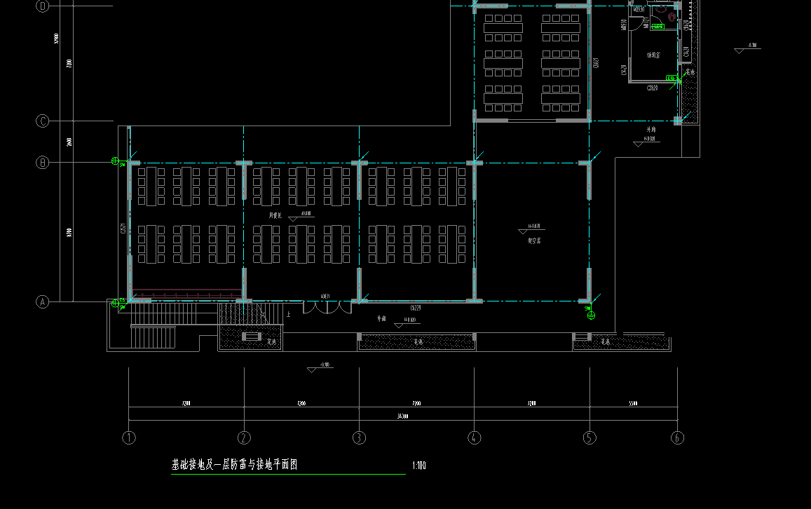
请问这个接闪带应该套哪像定额呢,广东2021-10-11 11:30:18 补充
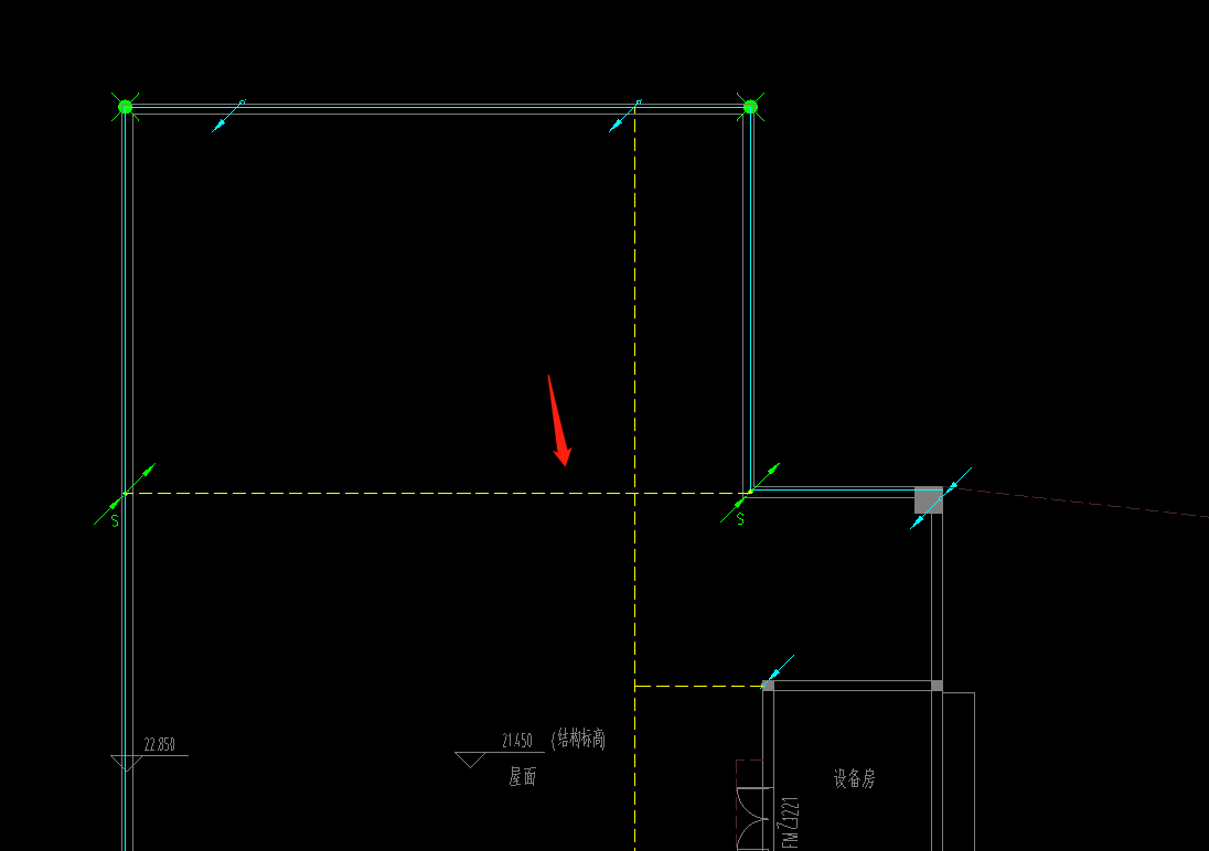
黄色的是在屋面,蓝色的是在一层位置


全部回答
(2)
首答仅用{{minutesHtml}}
-
已采纳
暗避雷带,按匀压环子目
2021-10-11 12:27:07
-
黄色线部分执行接地母线的定额子目,其余的避雷网的定额子目
2021-10-11 11:21:43






还有0条追问正在审核中,请稍后回来查看