-
on
2021-09-27 11:10:38
|
河北
安装预算
|
818查看
1回答
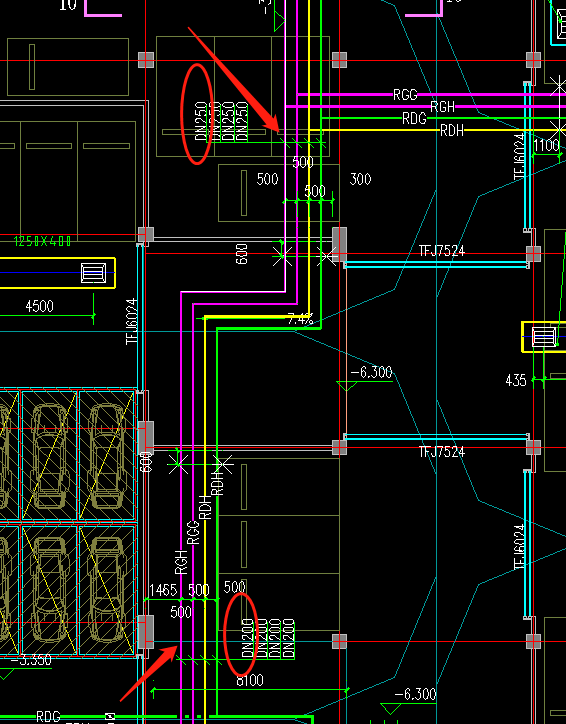
采暖管道变径

图中采暖管道是在哪里DN250变成DN200的
全部回答
(1)
首答仅用{{minutesHtml}}
-
已采纳
上图设计人员标注朱准确,DN250管道应该在三通的上方
回答正确请采纳并点赞,因为每一个专家都是免费服务
2021-09-27 11:22:16






还有0条追问正在审核中,请稍后回来查看