-
frist book
2021-09-11 10:58:52
|
四川
土建土建计量GTJ
|
6425查看
1回答
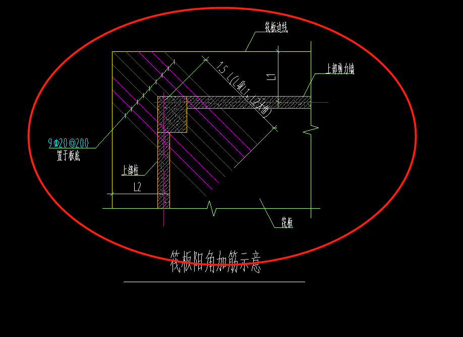
请问下各位老师,此处筏板阳角放射筋长度怎么算?



全部回答
(1)
首答仅用{{minutesHtml}}
-
伸入墙线内的长度是外L1、L2长度的1.5倍。
2021-09-11 11:03:23






还有0条追问正在审核中,请稍后回来查看