-
芒也
2021-08-31 15:37:13
|
广西
土建土建计量GTJ
|
567查看
2回答
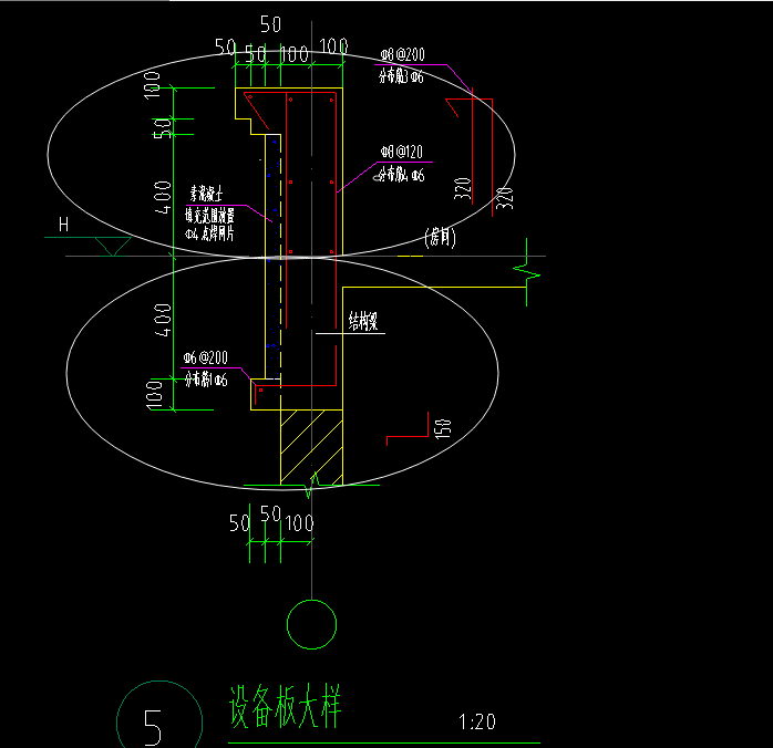
请问一下,这个大样该如何画?
上面画圈的部分用异形梁定义?下面的呢?谢谢了

全部回答
(2)
首答仅用{{minutesHtml}}
-
已采纳
你好,上面那个构件用异形墙构件,下面线条用圈梁
2021-08-31 15:38:37
-
用异型挑檐画就可以了,不用拆分画
2021-08-31 15:42:34






还有0条追问正在审核中,请稍后回来查看