-
小怪兽
2021-08-26 17:32:27
|
河北
土建预算土建计量GTJ
|
935查看
2回答
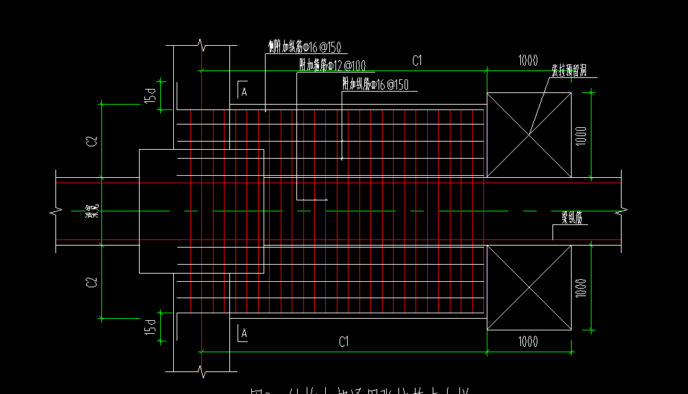
单侧梁加腋怎么布置,预应力加腋梁,请大神赐教




全部回答
(2)
首答仅用{{minutesHtml}}
-

2021-08-27 09:27:12
-
您好,请问这个问题您后来是如何解决的
2023-03-07 11:34:54






还有0条追问正在审核中,请稍后回来查看