-
周周
2021-08-21 11:27:00
|
河北
土建
|
1249查看
3回答
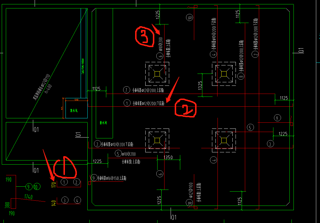
筏板主筋
筏板主筋圈2处我是用xy绘制的,请问圈1处170指的是弯钩长度吗?在哪里修改呢?
圈3处的钢筋用主筋还是用负筋绘制呢,按图示长度线布置上去吗?

全部回答
(3)
首答仅用{{minutesHtml}}
-
已采纳
圈3处的钢筋用主筋绘制,自定义范围布置。
2021-08-21 11:44:50
-
圈1处170指的是弯钩长度,在计算设置里修改
圈3处的钢筋用主筋绘制,按图示长度线布置上去
2021-08-21 11:31:23
-
1,是的,在计算设置里修改
2,用主筋布置,图示是范围。
2021-08-21 11:42:43






还有0条追问正在审核中,请稍后回来查看