-
不知名选手
2021-04-22 11:11:07
|
广东
土建安装装饰市政
|
647查看
1回答
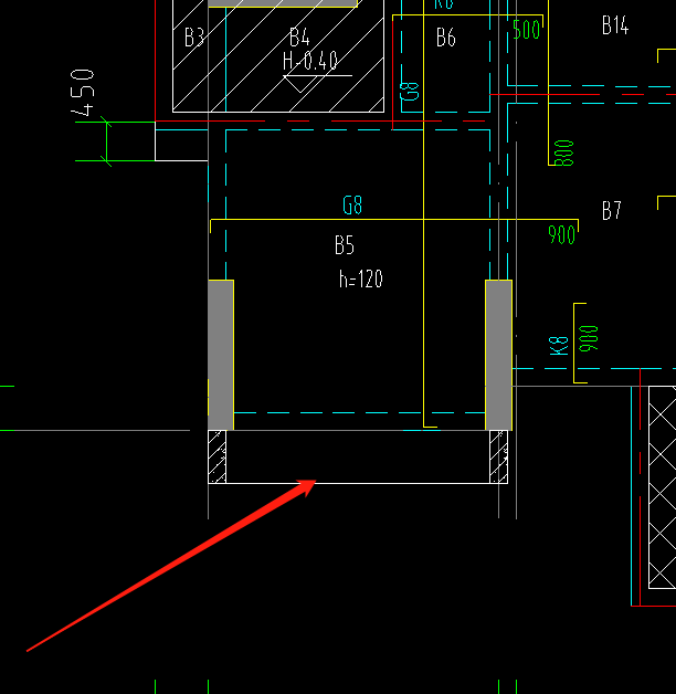
这个飘台怎么绘制?左右两边没有梁伸出来,左右两边的是什么东西?这是二层底下是空的



全部回答
(1)
首答仅用{{minutesHtml}}
-
左右两边的是混凝土侧墙
2021-04-22 13:43:49






还有0条追问正在审核中,请稍后回来查看