-
秋
2021-03-22 15:19:00
|
广西
土建
|
1370查看
2回答
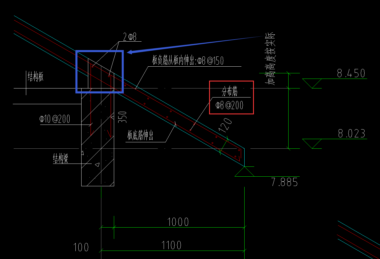
大家好,下图是檐口大样图该如何绘制呢?
加高高度的部位用什么画呢?
悬挑部位的板,“板负筋从板内伸出、板底筋伸出”是不是表示之前画板布筋的时候已经画上去了,不需要再画,只用画分布筋那里就可以了吗?

全部回答
(2)
首答仅用{{minutesHtml}}
-
你好:用圈梁,U形箍筋在其它箍筋里面计算输入。
2021-03-22 15:21:20
-
加高部分可以用异形梁或圈梁来定义并画图,挑檐和现浇板整体画后,再按屋脊处分割,再三点定义斜板及布置钢筋即可.
2021-03-22 15:53:27






还有0条追问正在审核中,请稍后回来查看