-
柠檬配醋
2021-01-04 21:28:06
|
山东
土建
|
634查看
1回答
请教个问题。

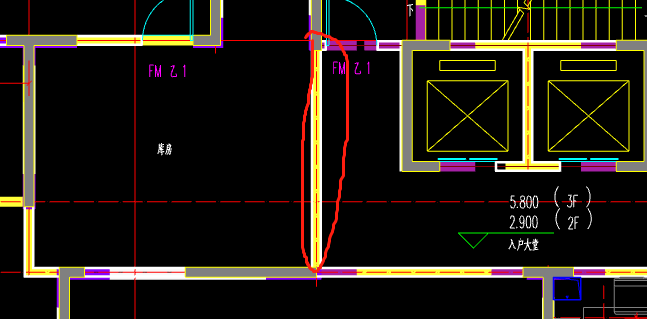
请问左侧是4.5标高商业,右侧是2.9 5.8标高住宅,中间砌体墙需要分别在4.5 和2.9标高标高处设置拉结筋吗?
全部回答
(1)
首答仅用{{minutesHtml}}
-
已采纳
4.5和2.9标高要有梁的,这个墙是坐落于梁上面的
2021-01-04 21:29:50






还有0条追问正在审核中,请稍后回来查看