-
造价女魔头
2020-12-23 15:44:28
|
河北
安装
|
1097查看
7回答
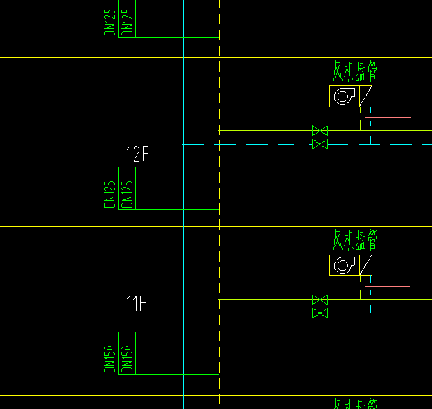
管道在哪变径
11F和12F在哪变径
全部回答
(7)
首答仅用{{minutesHtml}}
-
已采纳

2020-12-23 15:46:27
-
三通过去就变径
2020-12-23 15:46:11
-
按照在引出支管处变径
2020-12-23 15:46:13
-
三通之后就变径
2020-12-23 15:46:20
-
三通处变径

2020-12-23 15:48:28
-
管道都是在过了三通变径
2020-12-23 15:49:49
-
管道在三通处出口
2020-12-23 15:50:51






还有0条追问正在审核中,请稍后回来查看