软件下载
线下培训
软件教程
智能客服
购买咨询
建筑课堂
答疑解惑
新干线头条
资料下载
技能大赛
答疑专家入驻
课程讲师入驻
行业媒体入驻
设计专区
造价专区
施工专区
联系我们
合作推广
隐私政策
花朝 2020-12-13 16:04:17 | 广西 土建预算钢筋算量GGJ2013 | 655查看 1回答
我的答案 答题人必看《优秀回答指南》
asfsdfsadfdsf
补充或更正我的问题
完善我的答案 答题人必看 《优秀回答指南》
全部回答 (1) 首答仅用{{minutesHtml}}
GXZ 钻石专家
答题: 243391 被赞: 48272
你这是要选择“梁式配置钢筋承台”定义。
2020-12-13 16:05:38
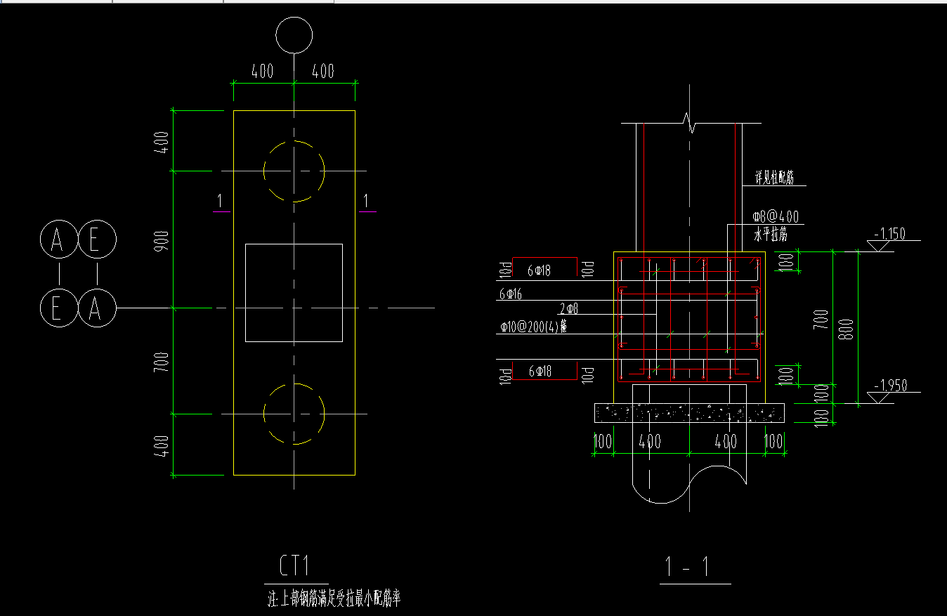
桩承台的钢筋怎么布置?
2025-11-05 17:14:08 补充2025-11-05 17:14:59 补充请问用哪种配筋形式?
有大佬知道桩承台怎么画么,用量话又有放坡,用矩形承台钢筋又不够设置
这种桩承台的钢筋怎么布置
桩承台的这个钢筋怎么布置呢?
这个桩承台的钢筋怎么布置啊?
如果没找到您想要的答案,试试直接提问吧!
尊敬的“{{nickname}}”,您好!
答疑解惑——建筑行业领先的互动问答平台
答疑解惑——建筑业(造价行业)领先的互动问答平台
您的问题已发布您的回答已提交
大多数问题会在7分钟内获得回答,感谢您的耐心等待
恭喜获得答题积分奖励,帮助他人,成就自己。
采纳优质答案,更可获得积分,兑换礼品哦!
高质量答案更易被采纳,获得额外高额积分奖励!
专家榜
数据更新时间 : 2026-03-06
天降福运!积分,经验值等福利在等着你哟,快来签到吧
还有0条追问正在审核中,请稍后回来查看