软件下载
线下培训
软件教程
智能客服
购买咨询
建筑课堂
答疑解惑
新干线头条
资料下载
技能大赛
答疑专家入驻
课程讲师入驻
行业媒体入驻
设计专区
造价专区
施工专区
联系我们
合作推广
隐私政策
浮浮沉沉 2020-12-03 14:59:50 | 江西 土建土建计量GTJ | 1530查看 2回答
我的答案 答题人必看《优秀回答指南》
asfsdfsadfdsf
补充或更正我的问题
完善我的答案 答题人必看 《优秀回答指南》
全部回答 (2) 首答仅用{{minutesHtml}}
nh 钻石专家
答题: 159456 被赞: 33944
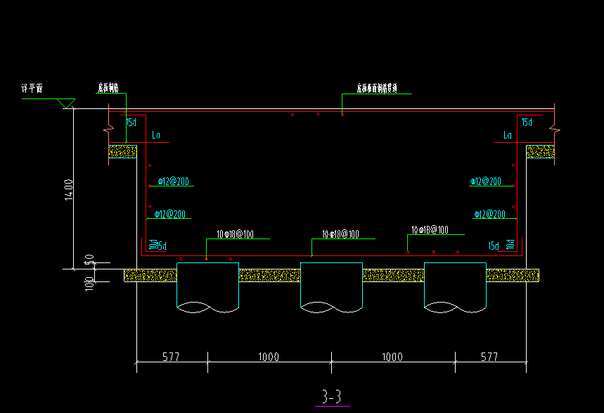
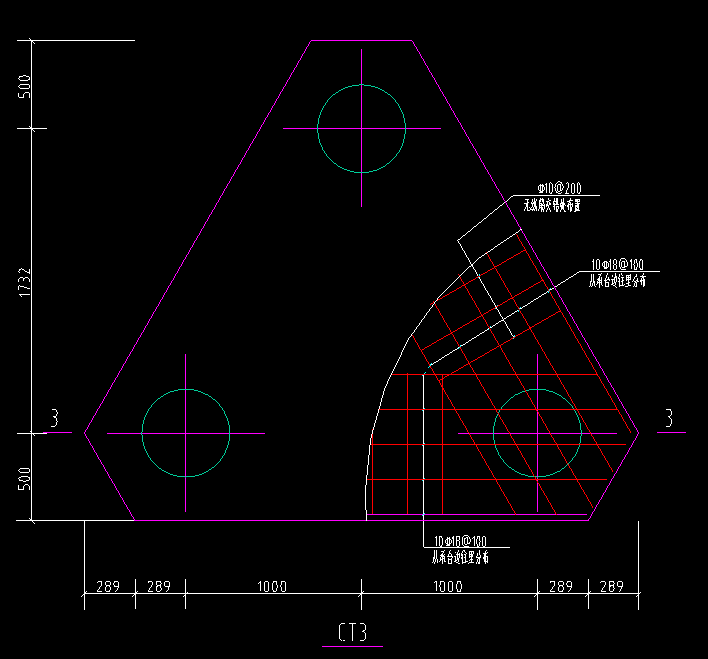
分布筋在属性内的其它钢筋里按图纸要求设置
2020-12-03 15:03:38
陈工 铂金专家
答题: 211112 被赞: 51050
侧面钢筋在其它 钢筋中输入。其它的看下图:
2020-12-03 15:03:46
这种三桩承台的分布筋怎么在广联达里面输入
这种三桩承台如何处理
三桩承台桩间连接筋的布置范围如何确定
怎么计算连接筋的根数?2020-08-13 10:12:20 补充
三桩承台配筋如何输入
请问图片中的4号配筋如何输入
请问该三桩承台钢筋如何布置
如果没找到您想要的答案,试试直接提问吧!
尊敬的“{{nickname}}”,您好!
答疑解惑——建筑行业领先的互动问答平台
答疑解惑——建筑业(造价行业)领先的互动问答平台
您的问题已发布您的回答已提交
大多数问题会在7分钟内获得回答,感谢您的耐心等待
恭喜获得答题积分奖励,帮助他人,成就自己。
采纳优质答案,更可获得积分,兑换礼品哦!
高质量答案更易被采纳,获得额外高额积分奖励!
专家榜
数据更新时间 : 2026-03-06
天降福运!积分,经验值等福利在等着你哟,快来签到吧
还有0条追问正在审核中,请稍后回来查看