-
星缘
2020-10-20 08:05:24
|
山西
土建
|
556查看
4回答
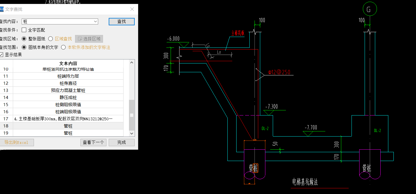
老师这个桩高度是多少

2020-10-20 08:15:03 补充



全部回答
(4)
首答仅用{{minutesHtml}}
-
从这个表查不出柱子高度。
2020-10-20 08:08:50
-
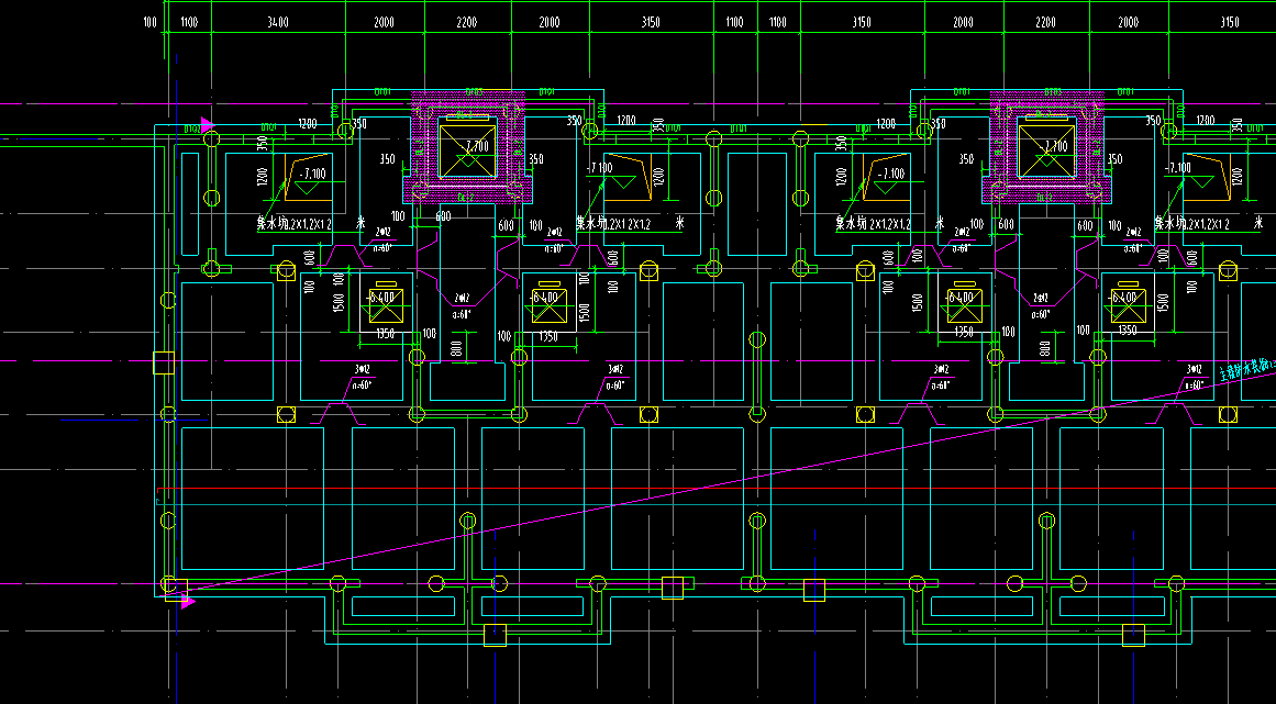
从杂填土到粉砂层厚度
2020-10-20 08:09:42
-
蓝色字体描述的是土质情况,黄色的字体是介绍桩的类型和桩端的持力层情况,与桩长和桩顶设计标高没有关系,所以从你上面截图来看,无法知道500预制管桩桩长或者管桩桩顶设计标高。
从你补充的第二张图纸来看,该部分的桩顶设计标高是-7.95,具体计算如下图:

2020-10-20 08:11:27
-
预算的计算桩长,按图纸说明要求的长度设置可以,结算按桩记录及签证设置
2020-10-20 08:20:46






还有0条追问正在审核中,请稍后回来查看