-
黄俊杰
2020-10-11 20:35:30
|
广东
土建土建计量GTJ
|
538查看
1回答
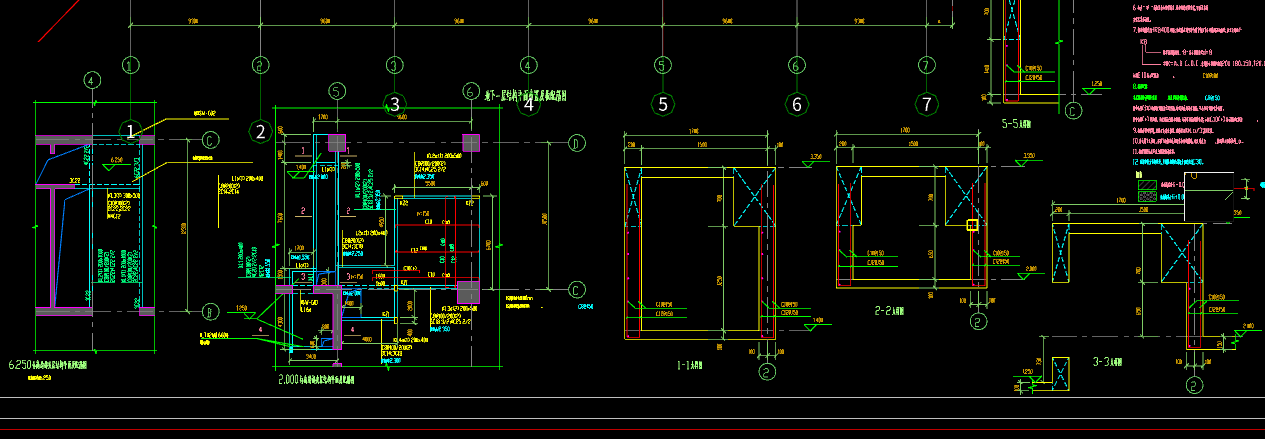
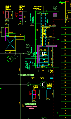
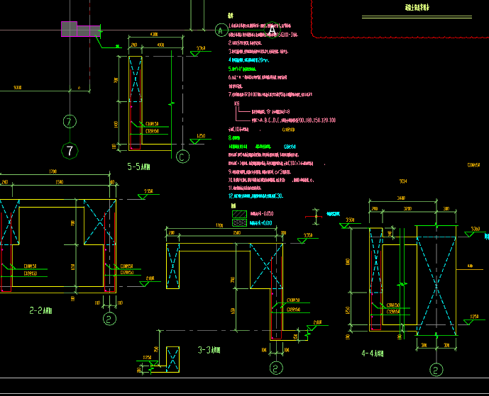
请教各位老师请问这种属于什么,应该怎么画



全部回答
(1)
首答仅用{{minutesHtml}}
-
已采纳
你好:这是节点构造,对应用剪力墙定义。
2020-10-11 20:42:09






还有0条追问正在审核中,请稍后回来查看