-
赴鹤
2020-09-01 08:34:16
|
山东
土建
|
976查看
6回答
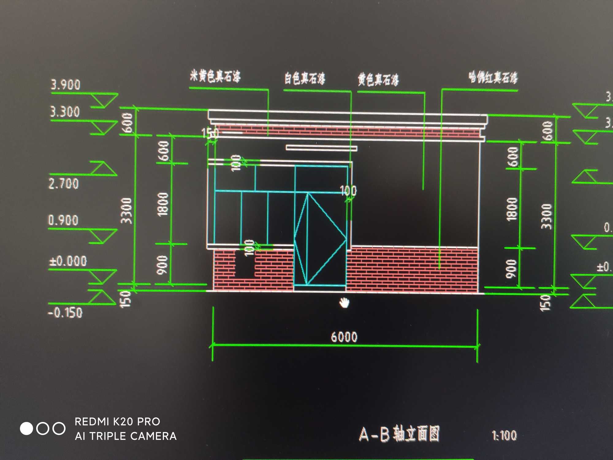
这个的屋檐高度是多少呀

全部回答
(6)
首答仅用{{minutesHtml}}
-
已采纳
3.3+0.15=3.45
2020-09-01 08:41:32
-
4.05
2020-09-01 08:41:30
-
3.300+0.150
2020-09-01 08:42:17
-
应该是3.45
2020-09-01 08:42:57
-
是平屋面的,算至屋面板,檐高就是室外地坪到屋面板的高度,3.3+0.15=3.45
2020-09-01 08:52:38
-
平屋顶檐高为室外地面标高和屋面板底标高之差-0.15-3.3=-3.45的绝对值
2020-09-01 09:46:31






还有0条追问正在审核中,请稍后回来查看