-
末末
2020-08-22 10:10:35
|
广西
土建预算
|
566查看
2回答
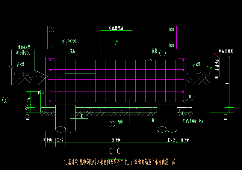
桩承台在广联达里面怎么编辑定义比较准确
2020-08-22 10:16:42 补充

全部回答
(2)
首答仅用{{minutesHtml}}
-
已采纳
选择相应的参数构件定义都是可以的,也可以说是准确的啦。
选择梁式配置钢筋承台定义,端头的封边钢筋在属性的其它钢筋里编辑。
2020-08-22 10:11:31
-
要看大样图的配筋形式的。
2020-08-22 10:11:14






还有0条追问正在审核中,请稍后回来查看