-
雨淡风轻
2020-07-11 12:01:54
|
河南
土建
|
1184查看
2回答
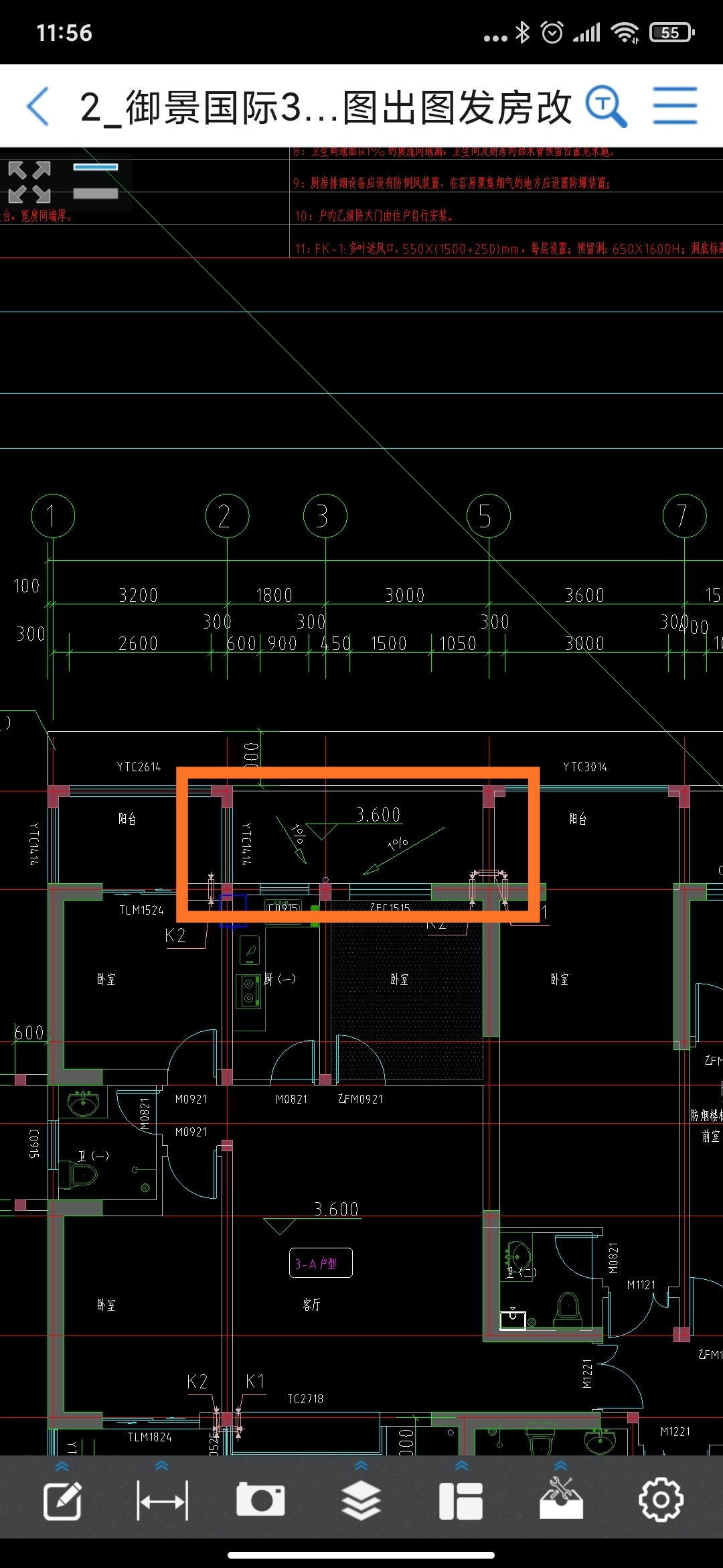
与二层底阳台相连的平台,无顶盖,计算建筑面积吗?图中圈起来的部分

全部回答
(2)
首答仅用{{minutesHtml}}
-
已采纳
与二层底阳台相连的平台,无顶盖,不 计算建筑面积 。
2020-07-11 12:03:26
-
你好:不计算。
2020-07-11 12:04:53






还有0条追问正在审核中,请稍后回来查看