-
匿名用户
2020-06-29 09:27:32
|
海南
土建预算钢筋算量GGJ2013土建算量GCL2013土建计量GTJ
|
328查看
1回答
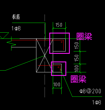
这个节点具体怎么做呢?小白求大神讲解

全部回答
(1)
首答仅用{{minutesHtml}}
-
已采纳

2020-06-29 21:05:02






还有0条追问正在审核中,请稍后回来查看