软件下载
线下培训
软件教程
智能客服
购买咨询
建筑课堂
答疑解惑
新干线头条
资料下载
技能大赛
答疑专家入驻
课程讲师入驻
行业媒体入驻
设计专区
造价专区
施工专区
联系我们
合作推广
隐私政策
陈情 2020-04-24 08:23:09 | 河北 土建结算土建计量GTJ | 528查看 1回答
我的答案 答题人必看《优秀回答指南》
asfsdfsadfdsf
补充或更正我的问题
完善我的答案 答题人必看 《优秀回答指南》
全部回答 (1) 首答仅用{{minutesHtml}}
钢筋撑起半边天 钻石专家
答题: 170734 被赞: 55268
选择梁式配筋的承台,柱子在基础里的箍筋不考虑,在柱子画上后自动有了
首次提交 2020-04-24 08:25:37 最近修改2020-04-24 08:26:24 (修改过1次)
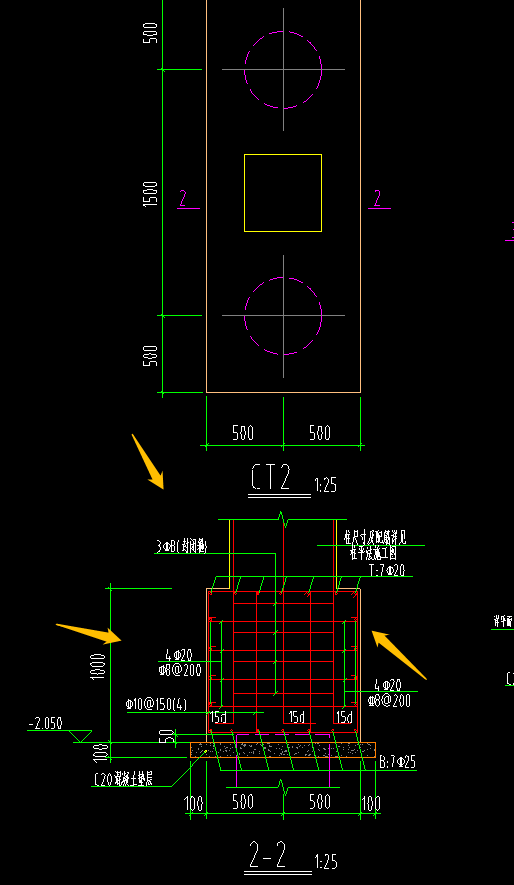
请问这个桩承台钢筋怎么输入?
请问这个桩承台钢筋怎么布置?怎么在上图输入,求详细
请问这个桩承台的配筋及信息怎么输入?
承台桩的钢筋怎么输入?
左侧是桩承台集中标注,里侧数值577的位置,是桩的板筋吗?桩间连接筋是承台标注中受力筋8C20吗?模型参数中侧边1000mm的位置这个数值应该按照什么输入?桩承台的侧面钢筋是输入图纸承台标注中C12-200吗?图纸中承台的标注是上下两层钢筋,但是模型中也没有输入两层钢筋,这个图纸中承台的标注又是什么意思?图集中就给出了以下一张,其余的没有
请问这个桩承台怎么设置?
如果没找到您想要的答案,试试直接提问吧!
尊敬的“{{nickname}}”,您好!
答疑解惑——建筑行业领先的互动问答平台
答疑解惑——建筑业(造价行业)领先的互动问答平台
您的问题已发布您的回答已提交
大多数问题会在7分钟内获得回答,感谢您的耐心等待
恭喜获得答题积分奖励,帮助他人,成就自己。
采纳优质答案,更可获得积分,兑换礼品哦!
高质量答案更易被采纳,获得额外高额积分奖励!
专家榜
数据更新时间 : 2026-03-06
天降福运!积分,经验值等福利在等着你哟,快来签到吧
还有0条追问正在审核中,请稍后回来查看