-
三两
2020-03-31 02:41:18
|
河南
土建
|
729查看
2回答
请教老师有关建筑面积的问题!







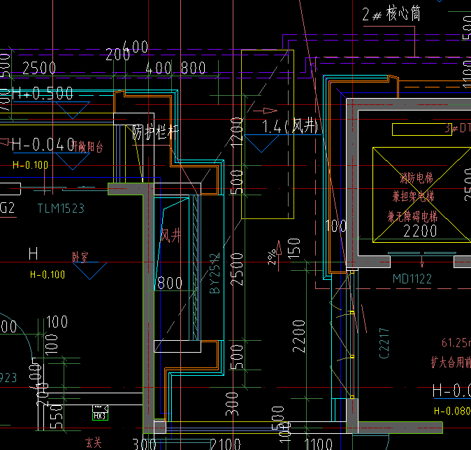
1、此飘窗窗台与地面高差为600mm,是否不计建筑面积?空调板是否也不计建筑面积?2、一层室内入口位置,三面有围护结构,顶盖为三层底板,此处是否只计一半面积?(同位置二层处应如何计算建筑面积)3、一层入口处,顶盖为二层开敞走廊底板,两面有围护结构,内侧为天井,如何计算建筑面积?4、建筑物外墙以外的风井如何计算建筑面积? 感谢老师解答!
全部回答
(2)
首答仅用{{minutesHtml}}
-
已采纳
1不计算;2及3全面积计算;4不计算。
2020-03-31 05:32:05
-
1均不计算面积;2、3、4不计算。
首次提交 2020-03-31 06:32:32 最近修改2020-03-31 06:33:24 (修改过1次)






还有0条追问正在审核中,请稍后回来查看