-
8565885
2020-03-25 23:01:26
|
江苏
土建预算施工
|
586查看
1回答
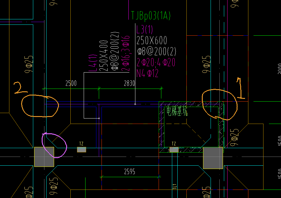
基础联系次梁
如图所示,L3两端与基础梁相交,基础梁标1的地方顶标高是-1.6米,标2的位置顶标高是-1.1米。图纸说明次梁与条基JL齐平。这个地方的电梯基坑基础顶标高也是-1.6米。
这个L3的标高应该怎么设置,施工时候这道梁该怎么布置? 如果按一端高-1.1米,一端高-1.6米,那么和电梯基础对应不上


全部回答
(1)
首答仅用{{minutesHtml}}
-
按照-1.6m设置(仅通过你的叙述来确定的,具体还得你看透图纸)。
2020-03-26 07:12:37






还有0条追问正在审核中,请稍后回来查看