软件下载
线下培训
软件教程
智能客服
购买咨询
建筑课堂
答疑解惑
新干线头条
资料下载
技能大赛
答疑专家入驻
课程讲师入驻
行业媒体入驻
设计专区
造价专区
施工专区
联系我们
合作推广
隐私政策
wen 2020-03-12 16:10:26 | 广西 土建 | 343查看 1回答
2020-03-12 18:58:08 补充
我的答案 答题人必看《优秀回答指南》
asfsdfsadfdsf
补充或更正我的问题
完善我的答案 答题人必看 《优秀回答指南》
全部回答 (1) 首答仅用{{minutesHtml}}
将军峰 白银专家
答题: 169601 被赞: 97671
你想要问的 问题是什么?
2020-03-12 16:13:11
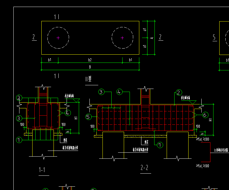
大神们,这个梁式承台的箍筋信息如何输入?
关于有梁式桩承台筏板基础,桩承台之间的梁应该用什么类型的梁来画?
1、图中连接承台的梁图纸标识为“DL1”,钢筋标注为“上部4C20;下部4C20;箍筋A8-150(4)”,梁顶面平齐筏板顶(承台顶),请问是应该用梁构建中的基础连系梁来画?还是用基础梁中的基础主梁来画?2、承台梁是否可以了理解为连接各个桩的条形承台,而非连接承台的梁?
桩承台外箍
请教各位老师,像这种承台,广联达外箍筋怎么输入补充问题:用承台的梁式配筋的话,那内外箍筋怎么解决方便?
如果没找到您想要的答案,试试直接提问吧!
尊敬的“{{nickname}}”,您好!
答疑解惑——建筑行业领先的互动问答平台
答疑解惑——建筑业(造价行业)领先的互动问答平台
您的问题已发布您的回答已提交
大多数问题会在7分钟内获得回答,感谢您的耐心等待
恭喜获得答题积分奖励,帮助他人,成就自己。
采纳优质答案,更可获得积分,兑换礼品哦!
高质量答案更易被采纳,获得额外高额积分奖励!
专家榜
数据更新时间 : 2026-03-06
天降福运!积分,经验值等福利在等着你哟,快来签到吧
还有0条追问正在审核中,请稍后回来查看