软件下载
线下培训
软件教程
智能客服
购买咨询
建筑课堂
答疑解惑
新干线头条
资料下载
技能大赛
答疑专家入驻
课程讲师入驻
行业媒体入驻
设计专区
造价专区
施工专区
联系我们
合作推广
隐私政策
杨 2020-01-06 10:28:29 | 河北 土建计量GTJ | 486查看 2回答
我的答案 答题人必看《优秀回答指南》
asfsdfsadfdsf
补充或更正我的问题
完善我的答案 答题人必看 《优秀回答指南》
全部回答 (2) 首答仅用{{minutesHtml}}
匿名用户
答题: 15 被赞: 7
一个一个画,像极了年轻时候的我
2020-01-06 10:29:53
Silently
答题: 34 被赞: 7
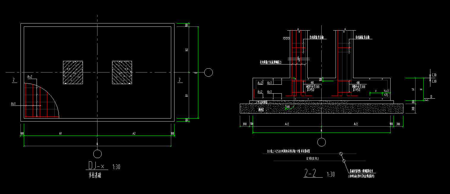
只画一个独基就行了,柱子画两个注意下锚固
2020-01-06 10:32:54
老师您好;请问这个怎么理解定义?
梁的腹板高度是指量减去板厚剩余的高度吗?
请问这个柱墩该怎么画?
老师您好,请问这个集水坑中蓝圈里的钢筋是什么,该怎么计算?
老师您好,请问这个阴影有倾斜的构件是女儿墙吗?该怎么定义和绘制?
请问这个构造柱该怎么画?主要是阴影部分的下至51.7不会画
如果没找到您想要的答案,试试直接提问吧!
尊敬的“{{nickname}}”,您好!
答疑解惑——建筑行业领先的互动问答平台
答疑解惑——建筑业(造价行业)领先的互动问答平台
您的问题已发布您的回答已提交
大多数问题会在7分钟内获得回答,感谢您的耐心等待
恭喜获得答题积分奖励,帮助他人,成就自己。
采纳优质答案,更可获得积分,兑换礼品哦!
高质量答案更易被采纳,获得额外高额积分奖励!
专家榜
数据更新时间 : 2026-03-05
天降福运!积分,经验值等福利在等着你哟,快来签到吧
还有0条追问正在审核中,请稍后回来查看