-
phonly
2019-08-01 10:13:30
|
四川
土建概算土建计量GTJ
|
883查看
1回答
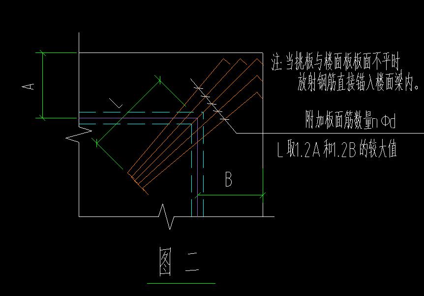
阳角放射筋L应该怎么算?
伸入板内的长度同支座面筋,就是1650,那L是怎么算的呢?他这个没有A/B


2019-08-01 10:13:57 补充

全部回答
(1)
首答仅用{{minutesHtml}}
-
在单构件输入中计算
2019-08-01 11:08:26






还有0条追问正在审核中,请稍后回来查看