-
Talent
2019-07-16 15:20:21
|
河北
土建土建计量GTJ
|
447查看
2回答
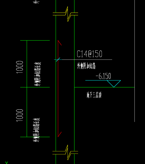
跨层外墙附加短筋问题,请问这个附加钢筋怎么输入啊

全部回答
(2)
首答仅用{{minutesHtml}}
-
可以放在“单构件输入”
2019-07-16 15:22:06
-
其他钢筋
2019-07-16 15:22:10






还有0条追问正在审核中,请稍后回来查看